Энергия искусства
Архитектор Юлия Алексеева создала в интерьере этой столичной квартиры современное и смелое прочтение стиля ар–деко

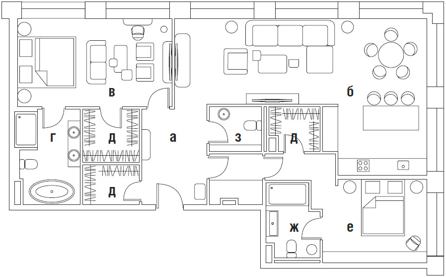
Просторную угловую квартиру с восьмью окнами в жилом комплексе премиум–класса Prime Park на севере столицы хозяева приобрели как городскую резиденцию на время командировок. С основательницей студии MIRALIT Юлией Алексеевой заказчики решили сотрудничать, изучив работы архитектора на авторском сайте. «Для меня это было одновременно неожиданно и ценно, ведь клиенты полностью доверились моему видению, дали полный карт–бланш, а основная часть общения и согласований происходила удаленно», — рассказывает Юлия. Ключевых вводных для проекта было несколько: смелость образа, яркий стиль и любовь хозяев к живописи. Автор проекта предложила сделать современное эклектичное прочтение стиля ар–деко, с его узнаваемой геометричностью и вниманием к натуральным материалам, которые, в свою очередь, стали идеальным фоном для предметов искусства.

















Изначальную планировку скорректировали, чтобы создать удобный парадный холл и просторную гостиную–столовую, которую разместили в угловой части квартиры с панорамными окнами. «Для меня очень важна связь интерьера и экстерьера. Потому я решила обрамить окна гостиной порталами из натурального дерева, превратив их тем самым в раму для живописного вида на историческую застройку», — замечает Юлия. Выполнить сложные работы с натуральным деревом дизайнер пригласила своих давних партнёров — мастеров из компании VINTAGE, которые также изготовили настенные шпонированные панели для гостиной: их расположение по диагонали и скрытая подсветка визуально делают пространство более сложным и разнообразным. На полу в холле, спальне и детской уложена инженерная доска из дуба компании GREENLINE с раскладкой «французская ёлка». Изысканность и необычность «французской ёлочке» придают дополнительные фаски, затонированные в цвет патины. В дополнение к натуральному дереву в гостиной стены в зоне кухни декорировали натуральным сланцем. «Для меня очень важны натуральные материалы и их качество, возможность вживую посмотреть образцы и выбрать среди них идеальный вариант, — размышляет Юлия Алексеева. — В нынешних условиях такая возможность осталась у считаных единиц, поэтому я обратилась к своим давним друзьям в салон ZODIAC Интерьер & Керамика, где представлен большой ассортимент керамической плитки и крупноформатного керамогранита с качественными текстурами. Ещё одним партнёром проекта стал производитель дизайнерского света в Санкт–Петербурге — компания Handle Studio, которая изготовила на заказ светильники для холла, ванной и главной спальни. В свою очередь, когда мне нужна достойная кухонная мебель, то я всегда обращаюсь в компанию VIRS ARCH, именно она помогает мне воплотить в жизнь неординарные авторские задумки и реализовать всё на самом высоком уровне».
Натуральное дерево и камень дополняют металлические элементы. Из характерной для ар–деко латуни создана плитка для ванной комнаты и основание комода в гостиной, а над столовой группой разметили акцентную золотистую люстру. Статусность и целостность образу придаёт текстиль: шторы с характерным геометричным узором, пледы и постельное бельё российского премиум–бренда ATELIERTATI. В это окружение идеально вписаны предметы искусства — керамика и живописные работы, большую часть которых автор проекта написала сама.
Выкрашенные в цвет стен потолки придают пространству завершённость и целостность, а смелый ход с насыщенным чёрным потолком в кухне или градиентным синим в детской ванной делает пространство ярким и впечатляющим. «Каждый проект я создаю как своеобразный сценарий, историю, главным действующим лицом в которой выступает заказчик. В этом проекте мне было важно передать смелый нрав и любовь моих заказчиков к искусству. Я предложила эклектичный взгляд, первую скрипку в котором играл стиль ар–деко. Сочетание натурального дерева, камня и металла сделало интерьер статусным и ярким, а благодаря моим партнёрам для интерьера удалось создать уникальные авторские предметы мебели, декора и отделки», — резюмирует архитектор.
Общая площадь 140 м2

Автор проекта архитектор, дизайнер интерьеров Юлия Алексеева (студия MIRALIT, г. Москва) Общая площадь 140 м2
