Одно целое
Дизайнеры из Dkart Design Studio оформили интерьер загородного дома, воплотив идеальную атмосферу для отдыха от городской суеты и единения с природой

Дом площадью 260 кв. м, окруженный живописным лесным массивом, расположен в коттеджном поселке «Каменка». Это идеальное место для тихой жизни, вдали от городской суеты. Владельцы дома — молодая семейная пара — обратились в DKART DESIGN STUDIO с четко сформулированной задачей: создать спокойное, функциональное, не перегруженное деталями пространство, где можно отдохнуть и насладиться природой, не отказывая себе в привычном комфорте.
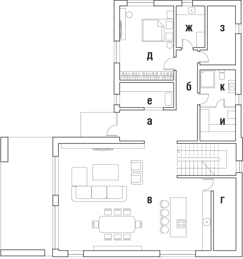
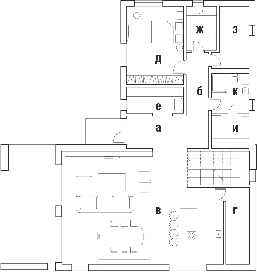
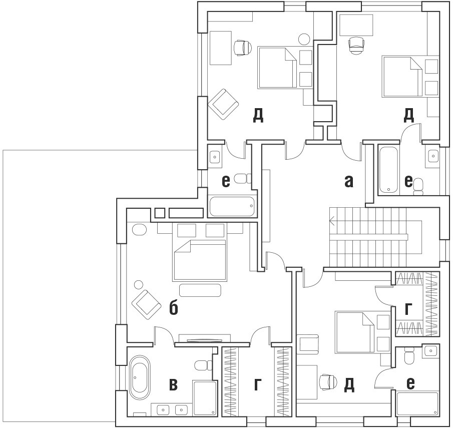
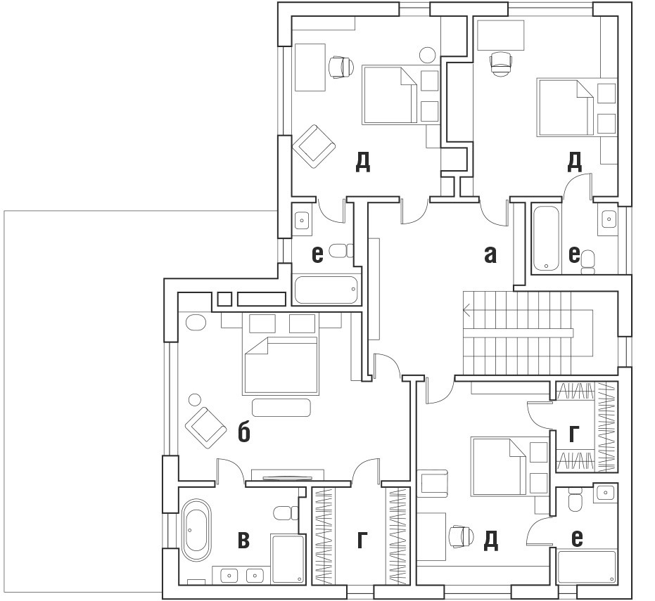
Дом двухэтажный, с высокими потолками, просторными помещениями, с обилием естественного света и панорамным видом на лес. Его планировку создавали с учетом образа жизни заказчиков. На первом этаже расположена просторная кухня-гостиная, гостевая спальня с санузлом и сауной, а также гардеробная. Второй этаж занимают хозяйская спальня со своей ванной и гардеробной, а также две детские комнаты. «Характерная особенность дома — панорамные окна. Они расположены по периметру всего дома и делают интерьер продолжением природного окружения»,— говорит руководитель студии Екатерина Дурава.















Заказчики отдают предпочтение минимализму как в архитектуре, так и в дизайне, поэтому интерьер был оформлен в стиле экоминимализм. «В отличие от классического минимализма, которое порой выглядит очень холодно и бесстрастно, этот стиль наполнен комфортом, теплотой и позволяет объединить пространство дома с окружающей его природой. Для этой задачи в отделке был сделан акцент на натуральные материалы, природные текстуры и спокойную палитру. При создании дизайна мы ориентировались на пожелания заказчика. Главной просьбой было отсутствие лишних, отвлекающих деталей, кричащих цветов и глянцевых поверхностей. Молодые люди много работают, поэтому, приходя домой, им хотелось чувствовать легкость и спокойствие. Мы старались не перегружать интерьер лишним декором, выбирали только приятные глазу пастельные оттенки материалов, текстиля и мебели. Для придания легкого контраста на стенах установили панели из натурального шпона, а на пол положили инженерную доску в теплых оттенках и керамогранит с текстурой бетона в ванной и прихожей. Ткани на мягкую мебель подбирались тактильно приятные — рогожка, букле. Такое оформление дома помогает жителям шумного мегаполиса почувствовать себя одним целым с природой», — добавляет автор проекта Юлия Понкратова.
«Сердцем» дома является большая светлая гостиная с мягким диваном, зоной ТВ и паровым камином. Здесь, как и хотели заказчики, можно собраться в кругу семьи за просмотром фильма или почитать книгу рядом с уютным камином, расслабиться и отдохнуть.
Общая площадь 260 м2


Руководитель студии DKART DESIGN STUDIO Екатерина Дурава. Автор проекта Юлия Понкратова (www.dkart.design.ru). Строительство компания NOUWEHOUSE (www.houwe.ru)