Искусство жить
Ирина Мавродиева и Артур Гога создали эффектный и лаконичный интерьер, в основе которого лежит увлечение хозяина квартиры современным искусством

Пространство этой квартиры архитекторы Ирина Мавродиева и Артур Гога создавали под влиянием личности её хозяина, человека увлечённого современном искусством. «С заказчиком мы были знакомы уже очень давно. Совместная работа над двумя другими проектами сформировала точное понимание его вкусов и требований к будущему интерьеру», — отмечает Ирина.
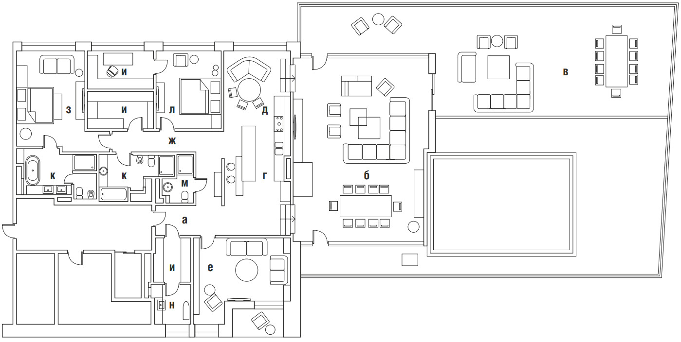
Современную стилистику проекта определило и расположение квартиры в одном из новых жилых комплексов в центре Москвы. Важной причиной выбрать именно эти апартаменты стала просторная терраса, которую присоединили к основному объёму квартиры и превратили в своеобразное продолжение общественного блока.
Хозяин дома любит принимать гостей, поэтому на террасе оборудовали сразу несколько зон отдыха — диванную, обеденную группу, барбекю и зону для завтраков.
В общественной зоне внутри также появились аналогичные функциональные группы. Основной объём с панорамным остеклением заняла парадная гостиная с камином и торжественная обеденная зона со столом из натурального мрамора. Из-за особенностей конструкции дома блок террасы и гостиной находился на небольшом возвышении относительно остального объёма. Архитекторы конвертировали эту деталь в выигрышный для интерьера ход. Кухню и гостиную соединили двумя симметричными порталами с лестницами, которые придают интерьеру торжественность и визуально усложняют лаконичное и строгое пространство.
Благодаря колористическому решению гостиная и кухня воспринимаются как единое целое. Здесь доминируют насыщенные и глубокие оттенки серого и чёрного, а в качестве акцентов выступают красный и охристый тона. В приватном же блоке доминируют более светлые оттенки этой гаммы, благодаря которым интерьеры обеих спален воспринимаются лёгкими, уютными и располагающими к отдыху.



















Общественный и приватный блоки разделяет раздвижная перегородка с блестящим глянцевым фасадом, который рифмуется с лаконичными линиями кухонной мебели и одновременно помогает изолировать блок спален, сохраняя его приватность и тишину.
Разные по настроению, приватный и общественный блоки объединены единым подходом к взаимодействию пространства и предметов современного искусства. Живопись, скульптура и керамика находятся в диалоге с окружающей их архитектурой. Яркие, впечатляющие вещи не перебивают интерьер, а помогают расставить в нём правильные акценты. «Найти и подобрать такие предметы всегда очень сложно, потому что нужно совпадение сразу нескольких факторов: архитектуры, цвета и настроения интерьера, вкуса заказчика. Мы точно знали, что в этом проекте появится живопись Александра Жерноклюева — друга и одного из самых любимых авторов хозяина квартиры. Для гостиной мы попросили Александра подобрать из архива работы в охристых тонах. И каков же был наш восторг, когда в квартире появилась та самая работа, которая идеально и по цвету, и по пропорциям вписалась в интерьер», — рассказывает Ирина. Продолжением идеи акцентного красного в зоне кухни стала работа известного португальского скульптора Руй Матуша из металла. Тёмное дерево в отделке интерьера авторы проекта поддержали эффектным деревянным панно от Алексея Березняка, а керамика от Екатерины Кочериной стала тем необходимым акцентом, который отвечает за цельность всего образа. «Тренды в архитектуре и дизайне меняются быстро, поэтому мы стремились создать пространство вне моды и сиюминутных течений. В этом интерьере предметы современного искусства соседствуют с мебелью легендарных дизайнеров, которая уже прошла проверку временем и никогда не выйдет из моды. Но в основе проекта, конечно же, лежит архитектура, которую мы стремились сделать максимально удобной для заказчика. Эта квартира — отражение индивидуальности её хозяина, поэтому для её создания мы использовали индивидуальный подход в каждой детали — от планировочного решения до выбора декора».
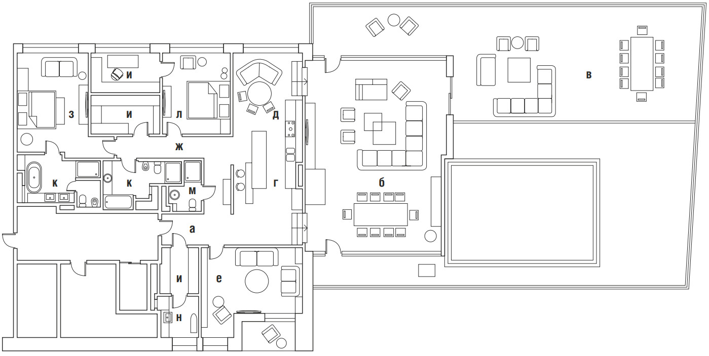
Общая площадь 300 м2

Авторы проекта архитекторы Ирина Мавродиева, Артур Гога (архитектурное бюро AMG–project, г. Москва)
Фото: Михаил Степанов. Стилист: Даша Соболева
