Идеальный баланс
Философия каждой квартиры отражает характеры и образ жизни её владельцев и потому уникальна. Так основной особенностью этого интерьера стала его многослойность... Следуя сценарию, выстроенному архитекторами, мы постепенно погружаемся в атмосферу комфорта и функциональной эстетики

Заказчики — молодая пара с маленьким ребёнком — приобрели две смежные квартиры в клубной резиденции «Крестовский de luxe» в Петроградском районе Санкт–Петербурга и обратились в архитектурную студию Background к Екатерине Игнатовой и Нане Кобахидзе с запросом создать уютный интерьер для жизни. «На первой же встрече мы сразу поняли, что у нас общие представления о том, что есть красота и гармония, и поэтому нам будет легко найти общий язык в процессе работы над проектом, — вспоминают Екатерина и Нана. — Простые спокойные формы, естественные природные цвета, красота текстур камня, дерева, стекла, металла; воздух, солнечный свет. Сложность в простоте — вот к чему мы стремились. Если бы нас попросили несколькими словами описать получившийся интерьер, то это были бы: респектабельность, цельность, природность, многослойность...
Эта квартира как рассказ — развивается и раскрывается по ходу движения. В каждом помещении есть как своя уникальная особенность, так и то, что делает его частью целого. Идеальный баланс целого и индивидуального — вот то главное, что делает этот интерьер гармоничным».
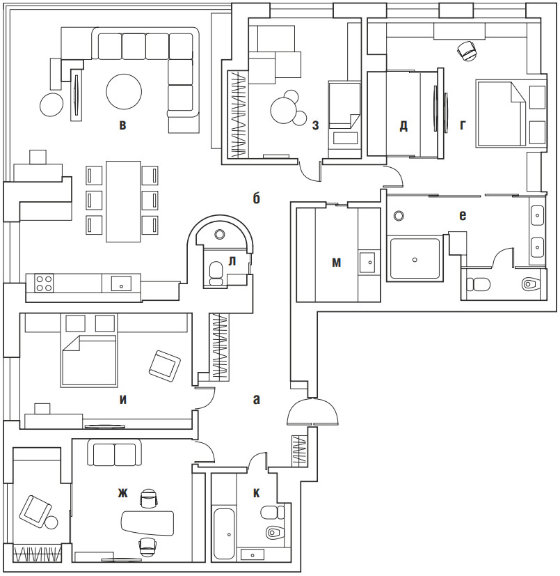
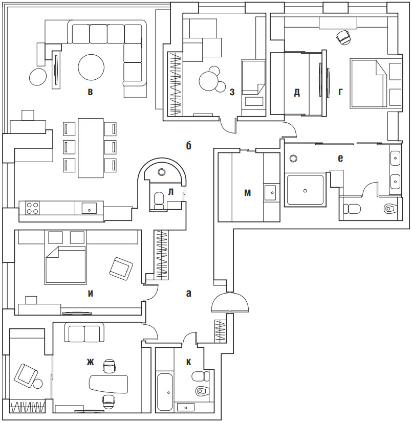
Одним из основных вопросов для архитекторов стал выбор сценария, по которому будет развиваться планировочное решение: если оставить вход через маленькую квартиру, то в гостиную можно будет попасть через прихожую и небольшой коридор; если же оставить другой вход, то из большой прихожей сразу будет просматриваться гостиная. Выбор был непростым, но решение сформировалось, исходя из пожеланий заказчиков. Они не хотели, чтобы из прихожей сразу открывалась центральная часть квартиры, владельцам хотелось получить многослойное пространство, которое раскрывается постепенно и не каждому. Таким образом сформировалась планировка, состоящая из нескольких функциональных блоков.
















При входе в квартиру расположена небольшая прихожая, из которой можно попасть в гостевую комнату, кабинет и санузел — эти помещения формируют первый блок, который условно можно назвать рабочим или общим. Здесь могут комфортно разместиться гости семьи — комнаты расположены достаточно далеко от приватной зоны хозяев квартиры. Вторым самостоятельным блоком является гостиная–кухня–столовая — просторное и очень светлое помещение с панорамными окнами и видом на город.
Кухня сделана максимально нейтральной и не сразу открывается взгляду — это было основное пожелание клиентов. Чтобы кухня «растворилась» в гостиной, авторы проекта применили ряд приёмов: закрытые верхние шкафы встроены заподлицо с плоскостью стены и схожи с ней по цвету; раздвижной «фартук» скрывает систему хранения, благодаря которой все предметы, обычно находящиеся на рабочей поверхности, могут быть убраны. Часть кухонных стеллажей со встроенной бытовой техникой «спрятана» за несущей стеной лоджии — из гостиной их совершенно не видно.
Центральное место в гостиной занимает большой угловой диван, с одной стороны от которого расположен камин и ТВ–экран, с другой — полки с передвижными фасадными панелями. Уникальным элементом гостиной является поворотная стойка с биокамином и телевизором. Нижняя часть стойки с камином — стационарная, верхняя с телевизором — поворотная, она облицована керлитом с текстурой травертина. При внешней простоте элемента внутри прячется довольно сложный металлический каркас, который позволяет тяжёлой конструкции легко поворачиваться.
Из гостиной можно пройти в третий блок комнат, приватный, где расположились детская, спальня родителей, гардеробная и ванная комната.
Общая площадь 200 м2

Авторы проекта архитекторы Екатерина Игнатова, Нана Кобахидзе (Background studio, г. Санкт-Петербург). Изготовление кухни по эскизам авторов компания Giulia Novars. Изготовление изделий из искусственного камня в санузле компания Corian812. Проектирование и изготовление встроенных столярных изделий компания «Антик–Стиль». Поставка дверей компания Union. Поставка керамогранита сеть салонов керамогранита и сантехники премиум–класса «Атмосфера». Поставка ковров салон ART de VIVRE. Поставка растений Saint Palms. Поставка декора Laboratory Dome
Фото: Иван Сорокин. Стилист: Анна Крутолевич
