Игра света и тени
Хороший интерьер немыслим в отрыве от окружения. Само месторасположение квартиры на последнем этаже жилого комплекса под Новосибирском предопределило современную стилистику пространства.

Пентхаус находится в загородном комплексе Flora&Fauna, расположенном на берегу Оби, буквально в пятнадцати минутах езды от города. С первого дня сотрудничества между владельцами квартиры и архитекторами Кириллом и Анной Дунаевой из «Дизайн– бюро №11» сложились тёплые и доверительные отношения, без которых никак, учитывая, что заказчики иногородние и что реализация проекта, совпавшая с периодом пандемии, проходила под чутким надзором авторов проекта, взявших принятие ключевых решений на себя. Хозяева этой необычной квартиры— успешная семейная пара с активной жизненной позицией, старший ребёнок которых уже живёт отдельно. Они придерживаются принципа Easy living, ценят качественные вещи и хороший дизайн. Собственно, все их основные предпочтения и легли в дизайн–концепцию проекта. «Мы стремились создать уютный и одновременно лаконичный интерьер, соответствующий образу жизни хозяев. Большие окна позволили впустить максимум света и воздуха и организовать общественные зоны на различные случаи—будь то семейный обед или шумная вечеринка с друзьями,—говорит Кирилл Дунаев.—Сейчас хозяевам непросто жить на два города—уезжать отсюда им совершенно не хочется».





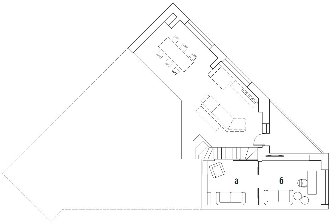
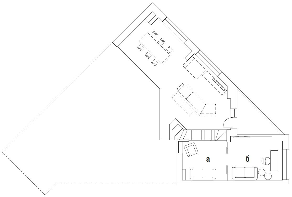
Суть концепции—крепкая архитектурная основа с удобной планировкой, где есть всё для комфортной жизни домочадцев. Главной отличительной особенностью квартиры являются разноуровневые потолки: 5,5 и 3 метра. Этим обстоятельством архитекторы не преминули воспользоваться и организовали домашний кабинет и зону отдыха на уровне «второго света»—над спальной комнатой, в результате чего полезная площадь квартиры увеличилась на 26 квадратных метров. «Архитектурный подход подразумевает работу с более сложными категориями, такими как свет и тень. В этом проекте мы постарались сделать дневной свет главным действующим лицом интерьера,—поясняет Кирилл.—Ещё на первоначальном этапе продумали планировку объекта: то, как семья будет жить в квартире, насколько им будет здесь удобно. Для этого буквально вникали в жизнь заказчиков, анализировали, много ли времени они проводят дома, любят ли готовить, и другие моменты, чтобы впоследствии интерьер мог всецело отвечать их требованиям. Большая высота потолков подсказала ключевое решение—организовать дополнительный антресольный этаж над спальней хозяев». Все помещения выдержаны в сближенной цветовой гамме—Кирилл и Анна стремились, чтобы пространства гармонично сочетались друг с другом и воспринимались как единое целое. Отсюда сдержанные, преимущественно светлые оттенки. Целостность обстановки призваны подчеркнуть материалы и мебель одних и тех же брендов, встречающиеся в разных местах квартиры. Так, например, в прихожей фрагментарно использованы стеновые панели ÉLITIS, они же, но уже в другом качестве и масштабе, организуют центральную ось столовой и служат главным акцентом общественной зоны. На полу во всех помещениях уложен паркет FiNEX. Стены выкрашены в разные оттенки из палитры красок английского бренда LITTLE GREENE.







При всей лаконичности и относительной строгости интерьера в квартире множество уютных уголков, наполненных причудливой игрой света,—чего только стоит графика теней от ограждения лестницы! «Эта конструкция выглядит очень зрелищно в лучах солнца и особенно на закате—у хозяев теперь есть свой личный «театр теней», наблюдать за которым сплошное удовольствие,—восклицает Анна Дунаева.— Когда мы проектировали лестницу, то думали о ней как о главном визуальном акценте гостиной и сами не ожидали, насколько «ветви» будут эффектно смотреться в жизни. Но уже в первый вечер после монтажа конструкции это стало настоящим открытием. Ещё интересная история случилась с поставкой растений: нам требовалось достаточно большое количество зелени разных форм и габаритов. Сам заказ формировали в Европе. Но каково было удивление подрядчика, который привёз крупногабаритный груз, ведь только тогда стали ясны реальные размеры некоторых экземпляров. Например, диаметр алоказии—1,8 метра при высоте 2 метра. Несколько дней ушло только на организацию доставки зелени на объект, потому что ни кто не знал, как её занести и уж тем более пересадить на месте. В итоге за пересадкой наблюдала вся команда, а после поставщик сообщил, что впредь будет внимательнее при оформлении подобных заказов».
Общая площадь 176 м2


Авторы проекта архитекторы Кирилл Дунаев, Анна Дунаева («Дизайн–бюро №11», г. Новосибирск).
