Домашняя роскошь, 250 м2
Бюро Rubleva Design & Architecture создало эффектное и статусное пространство с возможностью уединиться и провести время с семьей. Получился тонкий баланс между уютом и роскошью — золото, натуральные материалы, темные тона

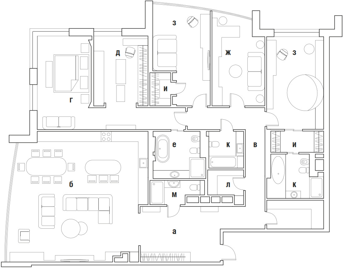
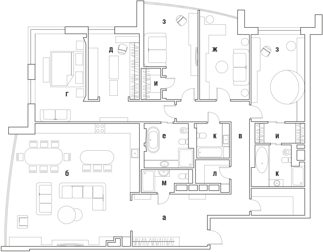
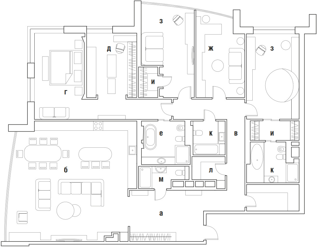
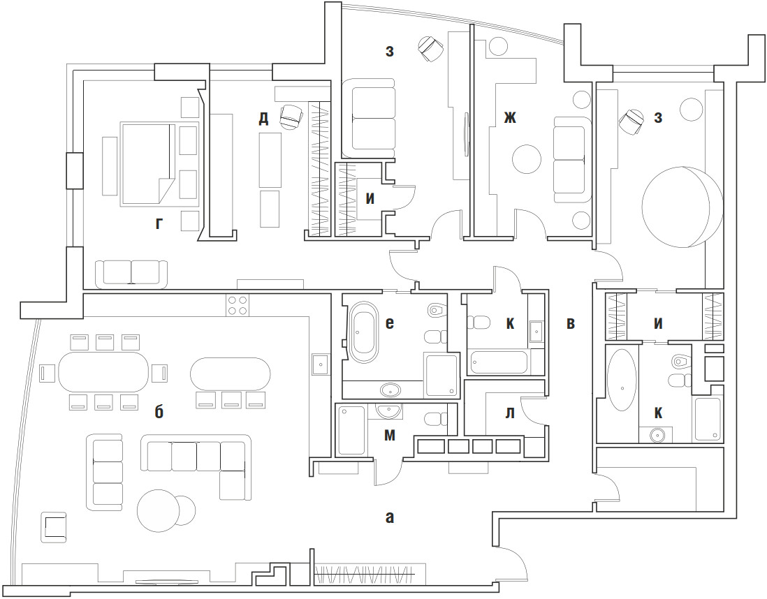
Хозяйка квартиры нашла архитектурное бюро Марии Рублевой в социальных сетях. Ей понравилась особенная атмосфера уюта, которая присутствует во всех проектах дизайнера независимо от стилистики. Перед Марией стояла задача объединить две квартиры общей площадью в 250 кв. м и изменить неудобную планировку застройщика, отделив приватную зону от гостевой. В семье двое детей — мальчик и девочка, и нужно было создать для них комфортное пространство, где можно отдыхать и учиться. Проект во многом отличается от других интерьеров студии — вместо воздушности здесь царят насыщенные глубокие цвета и золотые детали.
«Натуральное дерево, закатные оттенки — эта стилистика полностью отражает характер заказчицы, — делится замыслом дизайнер. — Интерьер получился нарядным, но при этом нам удалось соблюсти баланс между кричащим китчем и элегантностью». Чтобы хозяева могли легко переключаться от роскоши к камерности, Мария сделала упор на свет и сложные сценарии освещения — можно подсвечивать ту или иную зону или заполнить пространство торжественным светом, который будет отражаться в зеркальных панелях. Не случайно самым ярким элементом декора стала именно люстра, для которой была спроектирована ниша в потолке гостиной, отделанная золотистой поталью.
На подвесах из нее спускаются стеклянные декоративные элементы с позолотой, но свет исходит не от них, а из‑за гипсового карниза. «Это даже не люстра, а сложный в исполнении и задумке арт‑объект, — замечает Мария. — Но он однозначно этого стоил, потому что, сидя на диване под ней, ты испытываешь невероятные ощущения.

















Такая же люстра встречает нас и в прихожей, при входе в квартиру люстра сразу задает парадное настроение, оказывая неизгладимое и незабываемое впечатление на гостей». Из общественного пространства — кухни, гостиной, гардеробной для верхней одежды — мы попадаем в приватное. Здесь расположились комнаты брата и сестры. Сложность интерьера детских заключается в том, чтобы комнаты подстраивались «на вырост». Для комнаты 12‑летней девочки дизайнер выбрала спокойные тона и монохром, а также округлые элементы — мебель, молдинги, круглую кровать. Через раздвижные двери можно попасть в гардеробную и в отдельный санузел, который очень важен для юной хозяйки — она любит делать косметические процедуры. Детская для десятилетнего мальчика выполнена в сложных серо-голубых оттенках — нейтральные цвета позволят со временем изменить настроение в комнате. Продуманный маршрут движения по квартире ведет из нарядной гостиной в приватную зону и заканчивается спальней родителей. По выражению дизайнера, это фактически отдельное государство. Индивидуальный характер комнате придает потолок с подвесами в виде латунных колокольчиков. Мария хотела, чтобы эти элементы создавали настроение и отражали свет каждое утро, когда хозяева будут просыпаться и открывать шторы. Сам потолок отделан поталью, а насыщенно-темные стены не кажутся мрачными благодаря угловым окнам и продуманному освещению. Деревянные панели создают ощущение «шкатулки» и обволакивающий, притягательный уют, который заказчики хотели видеть в приватной зоне.
Мария признается, что для нее роскошь — это в первую очередь обоснованные и продуманные авторские решения, которые долго будут актуальными в интерьере. «Если раньше заказчики прежде всего думали о внешней красоте, то сейчас все уделяют внимание именно функционалу и технической «начинке». Ведь визуальную составляющую всегда можно поменять — перекрасить стены, купить новую мебель под настроение. Но при грамотном функционале вам не понадобится осуществлять серьезные переделки».
Общая площадь 250 м2

Автор проекта дизайнер Мария Рублева, бюро RUBLEVA DESIGN & ARCHITECTURE. Фото: Сергей Красюк. Стилист: Дарья Соболева