Светлый лёгкий интерьер в квартире с нестандартной планировкой в историческом центре Москвы, в котором нашли своё место и зеркальные поверхности, и природные текстуры, и современное искусство
Текст: Анна Новик. Фото: Николай Руденко
У дивана в гостиной все спинки отодвигаются, и глубина посадочного места увеличивается до 1360 мм, что позволяет сразу нескольким людям сесть перед телевизором полулёжа
Со своими клиентами архитектор Наталья Сальник познакомилась несколько лет назад в достаточно сложный момент их жизни — её команда была уже третьей по счёту, которую пригласили заказчики, чтобы достроить их загородный дом площадью чуть меньше тысячи квадратных метров. Проект был успешно завершён и, когда возникла необходимость отделки городской квартиры, заказчики решили не рисковать и снова обратились к проверенным профессионалам.
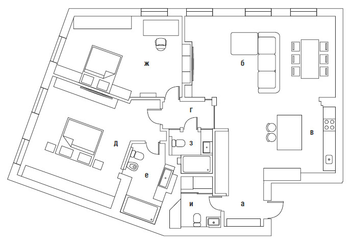
Квартира расположена в клубном доме в центре столицы на берегу Москвы–реки. В планировочном решении, предложенном застройщиком, попадая в квартиру, человек оказывался в тёмном замкнутом холле без окон, из которого двери вели в спальные зоны, а пройдя длинный коридор, можно было попасть в дальнюю часть квартиры, где располагалась кухня–столовая и гостиная. Ещё одним серьёзным недочётом изначальной планировки было малое количество систем хранения. Всё это не нравилось заказчикам, а, на профессиональный взгляд Натальи, было неверно с функциональной и эстетической точки зрения. Чтобы исправить ситуацию, архитектор поменяла местами функциональные блоки — теперь при входе в квартиру мы попадаем в одно большое светлое многофункциональное пространство, объединяющее зону прихожей, кухни–столовой и гостиной. Приватные комнаты «переехали» в дальнюю часть квартиры и благодаря такому решению окна спален оказались на восточной стороне — теперь солнечные лучи по утрам радуют хозяев.
Автор проекта архитектор Наталья Сальник
Светлой гостиную делает не только оттенок стен, но и расположение окон — они выходят на южную сторону, и солнце здесь бывает с обеда и до вечера. Многочисленные встроенные и накладные линейные подсветки от ЦЕНТРСВЕТ позволяют создавать различные картины освещённости в интерьере, фиксируют углы, переходы плоскостей, меняют цветовую температуру от концертного яркого белого до приглушённого интимного жёлтого. Диван Soho, журнальные столики с керамогранитом и стеклом, Gamma
Стена за телевизором отделана натуральным камнем с красивым, прихотливым рисунком и панно из американского ореха, использованного в отделке фасадов раздвижных дверей
Поскольку стол используется каждый день и должен быть практичен, выбор остановили на обеденном столе со столешницей из керамогранита из коллекции фабрики Cattelan Italia. Кресла и барные стулья этого же производителя. Паркетная доска, Mardegan
Вид из гостиной на прихожую. Оборудуя квартиру, автор проекта ориентировалась на российских производителей, но кухню всё же заказали в Италии на фабрике CESAR. В этой модели внимание архитектора привлекла необычная форма столешницы из керамогранита с обратным скошенным углом и встречным углом фасадных панелей
Хозяева просили предусмотреть большое количество зон для хранения. Попытки выделить отдельные помещения гардеробных при данной конфигурации приводили к тому, что спальни становились небольшими, поэтому автор проекта приняла решение оборудовать шкафы в комнатах и замаскировать их под стеновые панели. В спальне двери шкафа обтянуты тканью — текстильная панель добавила интерьеру мягкости и уюта. Прикроватные тумбочки, Tosconova
Спальня родителей, детская и санузлы отделены от зоны дневного пребывания раздвижной ореховой дверью–перегородкой: перегородка обычно «прячется» в конструкции шкафа и при необходимости ей можно легко воспользоваться.
Санузлы остались на своём месте, единственное, их расширили за счёт коридоров. Гостевой санузел, как и положено, остался в прихожей, там же находятся зона постирочной и шкафы для хранения хозяйственных принадлежностей.
Серый с коричневыми прожилками, натуральный мрамор и американский орех послужили отправной точкой при формировании цветовой концепции интерьера, под них уже подбирали всё остальное — паркетную доску, текстиль, отделку. Для личных комнат — спальни и детской — выбрали более камерные приглушённые цвета, а гостиную постарались максимально высветлить — на светло–сером фоне особенно выигрышно смотрятся большие плоскости красивых природных материалов. «Живописные текстуры камня, дерева и игра с их раскладкой уводили нас от строгого минимализма. Мелкие детали разбавили лаконичный фон и «оживили» интерьер, а паркет и тёплые светло–серые стены, проходящие через всю квартиру, сделали интерьер цельным», — резюмирует автор проекта архитектор Наталья Сальник.
Комод — необходимая и функциональная вещь в спальне. Сложность именно этой модели в том, что длина его 3,5 метра, и только благодаря мастерству изготовителя его удалось качественно выполнить и подвесить на гипсовую перегородку. Чтобы снивелировать его габариты, Наталья Сальник добавила на фасады комода зеркала, и он «растворился» в пространстве комнаты
Высокая спинка кровати, отделяет гардеробную зону от места отдыха. Наталья предложила заказчице самой выбрать ткань на изголовье кровати — сложные серо–бежево–зелёные цвета хорошо вписались в общую концепцию интерьера, а затем цвета ткани использовались на других поверхностях
Квартира имеет нестандартную в плане форму, поэтому детская спальня получилась в форме трапеции. Над кроватью разместили зеркало, чтобы сломать эту неправильную геометрию и визуально приблизить её к прямоугольнику
«Хозяйка комнаты — девушка 15 лет — под влиянием модных течений попросила сделать комнату чёрной, — рассказывает о решении архитектор. — Я очень осторожно отношусь к тёмным цветам в жилых помещениях. Одно дело, когда это клуб, ресторан, и совсем другое — место постоянного пребывания человека. Но в данном случае мы с родителями девочки решили рискнуть. Чёрный делать не стали, но сошлись на компромиссном тёмно–зелёном и тёмно–сером. Для меня это был новый опыт, но в результате получилось очень красиво, стильно и уютно. Светлый текстиль на контрасте оживил помещение. Юная хозяйка осталась очень довольна». Освещение в комнате — это современные системы от ЦЕНТРСВЕТ, которые управляются с айфона
В квартире три санузла — гостевой с выделенной постирочной зоной, при спальне родителей и детский. Для их отделки использован крупноформатный глянцевый керамогранит с рисунком, имитирующим природный камень, дерево и матовый фоновый «под штукатурку». Сантехника, Duravit, Villeroy&Boch, Hansgrohe. Встроенный зеркальный шкаф над умывальником в хозяйской ванной — один из любимых приёмов автора
Шкаф в прихожей выглядит как декоративная стена из крашеных панелей с отделкой орехом, зеркалами и латунью от NAKED ROOM (Россия). Даже самый внимательный гость не поймёт, что за ними скрыта вместительная система хранения