Аскетизм, натуральность, медитативность определяют характер этого интерьера, который стал для владелицы идеальным местом как для уединенного отдыха, так и для встреч с близкими
Текст: Ольга Сондж. Фото: Никита Теплицкий. Стиль: ARTIMITRO
Фрагмент гостиной. Темное пятно утопленного в нишу ТВ дополняет черный металлический диск со светильником на магните от From Lighting и напольный подиум с хранением. Кресло и столик — Henge. Непальский ковер с шелком, Jerome Botanic. Гипсовый барельеф изготовлен на заказ компанией KIMART. Вентиляционные решетки, Invisiline
История преображения апартаментов в престижном жилом комплексе «Сады Пекина» началась в конце 2021 года. Когда квартира находилась уже на завершающем этапе строительных работ, владелица осознала, что пространство не соответствует ее представлениям об идеальном доме. То, что выглядело удачным на чертежах, в реальности требовало совершенно иного подхода. В поисках нового решения она обратилась в студию ARTIMITRO.
Изучив объект, команда студии предложила радикальный подход: полный редизайн для раскрытия потенциала пространства с помощью выверенных архитектурных приемов. «В нашей работе мы всегда ставим перед собой задачу гармонизировать пространство. Для нас важно использовать исходный потенциал объекта по максимуму, усилить его: разглядеть объем, который станет доминантой; материал, который можно сохранить; конструкцию, которая задаст ритм, — объясняет руководитель проекта Артур Митрошкин. — Основные визуальные инструменты, которые мы используем: пропорция, проекция, объем, свет, контраст. И результатом такой комбинации всегда становится интерьер, в котором человек чувствует себя больше, в котором хочется быть лучше». Неудивительно, что при таком глубоком подходе к работе заказчица прониклась доверием к профессионалам и согласилась начать проект с чистого листа.
Руководитель проекта дизайнер Артур Митрошкин, архитекторы Яна Евсеева, Маргарита Докторович, студия ARTIMITRO
Гардероб для верхней одежды создан по авторским чертежам и расположен справа от входа за реечной перегородкой со стеклом от Rimadesio. В отделке преобладают темное дерево, черный металл и тонированное стекло. Строгость композиции смягчают паркет в виде французской елочки и теплая подсветка полок
Мягкая зона в гостиной организована диваном и столиком от Baxter. За такую форму дивана дизайнерам пришлось побороться: эта модель редко представлена в шоурумах, а заказчица сомневалась в ее удобстве. Однако выбор оказался верным: диван превзошел ожидания своим комфортом благодаря продуманной глубине посадки. Картина, автор Ли Шевалье, Booroom Gallery
Фрагмент гостиной. Чтобы достичь максимальной воздушности, авторы не стали привязывать новые стены к несущим бетонным колоннам: одну из них обнажили полностью возле дивана. Еще две колонны выходят из стен возле входной двери и в спальне
Фрагмент кабинета. Вороненый стеллаж был разработан по авторским чертежам дизайнеров ARTIMITRO и занимает всю стену напротив окна. Стеллаж включает закрытую деревянную секцию, но его основной объем сконструирован из стали. Вес стеллажа — около 800кг. Как вспоминают авторы проекта, подъем объекта в апартаменты и его монтаж были непростыми. Диван, Living Divani. Столик, Cattelan Italia. Торшер, Luceplan. Ковер, Jerome Botanic
Зона кухни — минимальная: для завтраков и аперитивов. Функциональный остров выполнен по чертежам авторов проекта. Полубарные стулья, Woak Design. Подвесной светильник, Baxter. Необходимую технику (Miele) разместили в колоннах, которые интегрированы в общую линию шкафов
Фрагмент кухни-гостиной. На каменной стене над подвесной тумбой с раковиной дизайнеры установили гипсовый барельеф длиной 5,5 метра, вручную выполненный специалистами студии Леонида Кима. Панно идеально вписалось в концепцию интерьера, ведь его сюжет вдохновлен китайскими гравюрами
Высокие шкафы кухни продолжаются системой хранения приватного блока. Гардероб разделен на функциональные зоны: закрытое хранение за глухими фасадами, стеклянные витрины с комодами, открытые стойки для быстрого доступа и полки для обуви. Из гардероба мимо санузла можно попасть в спальню, а затем выйти в гостиную с другой стороны, вдоль окна
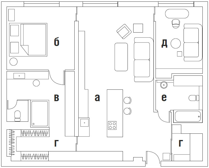
Авторы кардинально переосмыслили эргономику пространства: от расположения функциональных зон до высоты потолков и дверных проемов. Ключевым решением стала круговая планировка, которая визуально расширяет площадь, создает ощущение простора и устанавливает гармоничную взаимосвязь между зонами. В отличие от предыдущей концепции, вид на центральную часть интерьера — кухню-гостиную — теперь открывается сразу от входа, что усиливает впечатление воздушности. Сама входная дверь максимально интегрирована в дизайн: темная панель МДФ на ее внутренней стороне выполнена до потолка по принципу мачты и визуально воспринимается как элемент отделки стены. Другое выразительное решение — элегантный проход вдоль окон, соединяющий гостиную с приватным блоком и кабинетом.
Стилистически интерьер вдохновлен монументальностью сталинской архитектуры и азиатскими мотивами, которые отражены в названии жилого комплекса и отвечают эстетическим предпочтениям владелицы. В материалах и геометрии пространства прослеживаются аскетизм, натуральность и медитативность, вызывающие ассоциации с садом камней — это пространство действительно создано для того, чтобы замедлиться и обрести равновесие. «Вы даже не представляете, насколько среда влияет на наш образ мыслей, какой мощный это инструмент, как важно окружать себя правильными предметами, находиться в правильных пропорциях», — отмечает Артур Митрошкин.
При этом проект отличается продуманной технологичностью — неотъемлемым элементом современного жилья. «Нельзя забывать о том, что мир быстро развивается, и, помимо совершенства объемов, сегодня необходима технологичность, которая является залогом удобства, а также должен быть заложен потенциал для улучшения», — поясняет архитектор Маргарита Докторович. Рядом с входом расположена компактная сенсорная панель Control4 для управления светом, климатом, жалюзи и звуком. Эта система, дополненная специальным приложением для смартфона, работает вместе с минималистичными выключателями Ekinex. «Автоматизация — неотъемлемая часть современного проектирования, особенно когда речь идет о больших площадях», — подчеркивает Маргарита.
Проход вдоль окон из кухни-гостиной в приватный блок (пространство спальни, гардеробной и санузла) и кабинет выделен камнем и функциональным опуском потолка с линейными черными треками вдоль всей линии окон. Стена и оконные откосы отделаны деревянными панелями
По техническим причинам проектные шаттерсы на окнах были заменены на деревянные жалюзи с широкими ламелями. Настроение от этого не пострадало, а, может быть, даже выиграло. Окна выходят на закатную сторону, и вечером по полу разливаются теплые лучи. Деревянные постаменты, Modenature
Приватный блок, как и остальная часть квартиры, выдержан в глубоких темных тонах. Это создает атмосферу уюта и защищенности и способствует расслаблению
Фрагмент спальни. Основа композиции — замшевая кровать Minotti. Слева от нее расположен столик Baxter в теплом металле, справа — композиция с закрытой тумбой и фарфоровыми подвесными светильниками Bocci. Несущая колонна из бетона играет роль настенного панно и добавляет интерьеру характера
Зона санузла и гардероба отделена от зоны отдыха перегородкой из тонированного стекла, которую при необходимости можно закрыть. «Мы долго согласовывали текстиль, — вспоминают авторы. — В итоге мы установили портьеры из темной пальтовой шерсти, фактура которой напоминает шинель»
Вид на санузел. Парящая каменная консоль с раковиной и два двусторонних зеркала с подсветкой выполнены по чертежам авторов проекта. Пространство структурировано двумя стеклянными кабинами: тонированной полупрозрачной душевой и непрозрачным черным кубом для унитаза, обеспечивающим максимальную приватность. Смесители — Dornbracht, аксессуары и унитаз — Antonio Lupi, полотенцесушители — Cea
Ванная комната. Ванна из белого акрила, выполненная по индивидуальному заказу, элегантно встроена в нишу с отделкой вафельной плиткой под бетон от Cedit. По размеру ниши на потолке установлен лайтбокс. Интерьер дополнен смесителями Dornbracht, аксессуарами и унитазом Antonio Lupi. Помещение будет также использоваться хозяйкой для купания собаки
Фрагмент гостевого санузла. Интерьер акцентирован тонированным зеркалом в пол и белой цилиндрической раковиной с напольным смесителем. Пространство дополняют высокие темные шкафы справа от раковины и за унитазом, оснащенные скрытыми отсеками для хранения бытовой химии и доступа к коммуникациям
В результате команда ARTIMITRO создала не просто эстетически выверенное пространство, но настоящую среду для жизни, где каждый элемент работает на ощущение гармонии и комфорта. Проект демонстрирует, как правильно организованное пространство может влиять на качество жизни, настроение и мироощущение человека. В дизайне этих апартаментов удалось достичь баланса между монументальностью и уютом, технологичностью и эстетикой и создать место, где хозяйке действительно хочется жить и восстанавливать силы.
Авторы проекта: руководитель проекта дизайнер Артур Митрошкин, арт-директор и архитектор Маргарита Докторович, архитектор Яна Евсеева (Архитектурная студия ARTIMITRO) Строительство компания ERTS BURO Автоматизация компания Smart Touch Работы по камню Артем Дозоров Изготовление стеклянных конструкций компания StekloMet Изготовление светозащитных конструкций Coulight Краска AVIUM компания Inviktus Поставка отдельно стоящей мебели салон HomeART Изготовление текстиля AMMONIT atelier
Авторизуйтесь, чтобы продолжить чтение. Это быстро и бесплатно.