Цвет настроения
Для молодой семьи с двумя детьми дизайнеры Анастасия Ламидова и Игорь Ситкилов разработали универсальный современный интерьер с элементами ар–деко

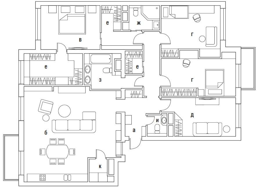
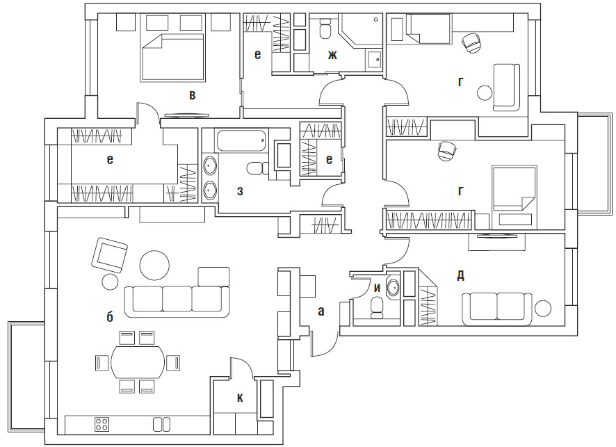
Хозяева — молодая семейная пара с двумя детьми — приобрели две квартиры и поставили перед дизайнерами задачу создать комфортное пространство с большой общественной зоной для приёма родных и друзей. Гостиную с кухней владельцы планировали обустроить на месте маленькой квартиры, из окон которой открывается вид на набережную Москвы–реки. Дизайнеры всецело поддержали это решение, оно было самым логичным. Но при этом вход в гостиную получался неудобным, впритык к входу в квартиру. Поэтому основным сделали второй вход (со стороны большой квартиры), а «запасной» скрыли, задекорировав его порталом с витражной дверью. Благодаря объединению квартир удалось разделить объём на два отдельных, самостоятельных блока. «Во всех своих проектах мы всегда стараемся максимально развести общую зону и приватную, чтобы они не пересекались. Это наш главный критерий при создании планировочного решения, особенно когда речь идёт о семье с детьми. Эта квартира не стала исключением», — поясняет решение Анастасия Ламидова.




Хозяева — большие ценители вина, что нашло отражение в интерьере. В гостиной появилась винотека (ей отведено одно из центральных мест), а в оформлении использован глубокий винный оттенок. Уютное кресло и мягкие подушки бордового цвета выступают в качестве акцентных элементов. Закольцовывает композицию картина «Билатеральная симметрия №6» Татьяны Неги, выдержанная в той же цветовой гамме. Ещё один знаковый элемент — ниша из натурального оникса Ivory, ставшая настоящим украшением гостиной. В приватной зоне цветовой диапазон шире, здесь Анастасия и Игорь применили любимые хозяевами цвета. В спальне парой к основному оттенку тортора выступил пастельно–бирюзовый, привнёсший свежие нотки тропиков. В спальне дочери доминирует пыльно–розовый цвет, который в сочетании с жемчужным рисунком обоев ручной работы и серым оттенком стен выглядит ещё более изысканным. Для комнаты сына выбрали уверенный серо–бежевый цвет.
Чтобы смягчить современный характер пространства, использовали приёмы, характерные для классических стилей и ар–деко. Так, карнизы, зеркальные панели, натуральный камень, благородные ткани присущи классическим интерьерам, а строгая геометрия, обтекаемые изгибы мебели, гладкость и сияние оникса, портьеры из дикого шёлка и экзотические мотивы напоминают об эпохе роскоши. Но все эти элементы гармонично сочетаются и дополняют друг друга, интерьер не выглядит перегруженным. Благодаря правильному балансу, умеренности в сочетании с натуральными материалами он будет оставаться актуальным долгие годы. «Мы постарались создать универсальную жилую среду для мегаполиса, современную и одновременно уютную, — замечает Игорь Ситкилов. — Что важно: все предметы обстановки — европейских фабрик, только оригиналы, никаких копий и реплик. Мы придерживаемся этого принципа во всех своих проектах. В этом смысле, пожалуй, самый заметный предмет здесь — невесомые люстры фабрики QUASAR, форма которых стилизована под классическую, но в современном исполнении. Их образ ещё раз напоминает о том, что в этом интерьере за основу взяты классические приёмы».









Общая площадь 170 м2

Авторы проекта дизайнеры Анастасия Ламидова, Игорь Ситкилов (студия SIOCREATION, г. Москва)
Фото: Ник Руденко. Стилист: Нелли Муратова
