За озарением в Петербург. 35,8 м2
Однокомнатную квартиру в Санкт-Петербурге хозяйка решила сдавать в краткосрочную аренду. Соответственно, жильё должно было быть удобным и нравиться гостям разного возраста, вкуса, менталитета. Заказчица попросила создать светлый, современный интерьер, с применением интересных дизайнерских решений и относительно недорогих отделочных материалов

Несмотря на небольшой метраж, необходимо было организовать достаточно мест хранения и оставить максимум свободного пространства. Ведь однокомнатную квартиру необязательно снимет один человек. Несомненным достоинством для арендатора будет удобная кухня, оснащённая современной техникой, даже если гости не предполагают много готовить, а также выделенная столовая зона.
Перепланировка. Квартира, расположенная в недавно построенном кирпично-монолитном доме, имела довольно необычную планировку. Основной задачей стало функциональное совмещение зон гостиной и спальни, а также обустройство рабочего места, если главная цель визитёра — деловая. Дизайнер грамотно спланировала пространство без глобальной переделки. Была возведена только небольшая перегородка из мебельного щита около спального места.








Ремонт. Жильё приобретено с полной чистовой отделкой от застройщика. Потолок выровнен, зашпаклёван и окрашен в традиционный белый цвет. Стены оклеены рельефными обоями под покраску. На полах практичный ламинат. В санузле — светлая матовая керамическая плитка. Все помещения изначально оснащены клапанами инфильтрации для притока свежего воздуха. В соответствии с проектом перенесли часть розеток. Пластиковый плинтус заменили на полиуретановый под покраску. Для стен подобрали два цвета и распределили их согласно плану зонирования. Привнесли для декора такие классические элементы, как декоративные молдинги, — всё-таки квартира находится в Санкт-Петербурге.
Интерьерный декор золотистого цвета, латунные элементы светильников, столиков, мебели, вопреки холодности металла, добавляют интерьеру тёплых визуальных акцентов
Дизайн. В зоне гостиной разместили телевизор и диван, который при необходимости трансформируется в спальное место. Большая двуспальная кровать занимает своеобразную нишу неправильной формы.
Дизайнер выбрала для отделки интерьера базовые, спокойные оттенки и универсальные вещи, в окружении которых человек чувствует себя спокойно и уверенно. В то же время умело подобранные акцентные элементы: кухонный фартук, яркая мягкая мебель, интересные светильники — разбавили нейтральную цветовую гамму и сделали квартиру особенной.
Рассказывает автор проекта
Дизайнер Екатерина Шейн
Интерьер выполнен в современном стиле с фрагментами неоклассики. Фоном выступает нежная пастельная цветовая гамма. Некоторые предметы мебели, фрагменты отделки стен, аксессуары имеют контрастные, яркие, сложные цвета и сразу привлекают внимание. После реализации проекта квартиры, предназначенной для краткосрочной аренды, перед первым приёмом будущих жильцов хозяйка захотела дать новому интерьеру имя. Отправной точкой послужило название жилого комплекса — «Автограф». А расположенной в нём квартире она решила подобрать имя знаменитого петербуржца. Среди множества разных людей, связанных с Санкт-Петербургом, выбрали Анну Ахматову. Удивительно, что на фотографиях квартиры-музея Анны Ахматовой в Фонтанном доме мы увидели бордовые диваны и светло-зелёные стены, как в этом интерьере. Всё сложилось каким-то мистическим образом, поэтому на рабочий стол решено было положить несколько книг с её стихами, а интерьер назвать «Автограф.Анна».
План до ремонта

Технические данные
до ремонта:
- общая площадь (без балкона) — 35,8 м2
- высота потолков — 2,75 м
после ремонта:
- общая площадь — 35,8 м2
- высота потолков — 2,75 м
Весь объект
- Двери: от застройщика
- Стены: от застройщика, перегородка из ЛДСП
- Потолок: шпаклёвка, краска от застройщика
- Пол: ламинат от застройщика
- Плинтусы/молдинги: NMC
- Подоконники: от застройщика
- Электроустановочные изделия: Legrand
- Оборудование: радиаторы от застройщика
- Окна: от застройщика
- Шкафы встроенные: изготовлены на заказ в столярной мастерской
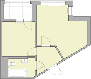
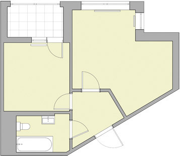
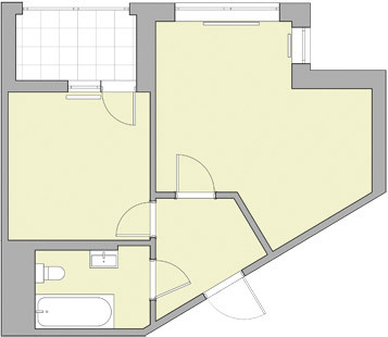
План после ремонта

1. Лоджия 3,7 м2
2. Кухня 10 м2
- Стены: обои под покраску от застройщика, краска Dulux, керамическая плитка Equipe
- Мебель: столярная мастерская — на заказ, стол Card&loft, стулья Stool Group
- Светильники: Rivoli
- Бытовая техника: вытяжка Elikor, варочная панель и духовой шкаф Weissgauff, холодильник Atlant
3. Санузел 4,5 м2
- Мебель: зеркало «Алмаз-Люкс»
- Бытовая техника: стиральная машина Candy, водонагреватель Thermex
4. Прихожая 4,2 м2
- Стены: обои под покраску от застройщика, краска Dulux
- Мебель: столярная мастерская — на заказ
- Светильники: Rivoli
5. Гостиная-спальня 17,1 м2
- Стены: обои под покраску от застройщика, краска Dulux
- Мебель: диван Live Line, стол письменный ИКЕА, стул Restyl, журнальный стол Sheffilton
- Светильники: торшер Artstyle
