Шелест природы. 70 м2

Двухкомнатную квартиру в ЖК «Ривер Парк», построенном в Москве по индивидуальному проекту, супруги приобрели в преддверии пополнения семейства. Заказчикам хотелось, чтобы их жильё выглядело просто и спокойно, отделка была лёгкой и светлой, с преобладанием натуральных материалов и природных оттенков. Обозначенные приоритеты соответствовали экостилю — популярному направлению интерьерного дизайна.
Перед дизайнером была поставлена задача комфортно разместить в двухкомнатной квартире четырёх человек: сделать уютную спальню родителей с кроваткой для малыша, обустроить стильную комнату для сына-подростка, а общую гостиную организовать в просторной кухне. Семье требовались выделенная постирочная зона и обширные системы хранения. Важная роль отводилась звукоизоляции помещений, чтобы малыш не будил своим криком брата, а тот, в свою очередь, не мешал спать младенцу музыкой в комнате по соседству.
Перепланировка. Внутренние перегородки в квартире были ненесущими, что дало возможность немного увеличить площадь супружеской спальни, изменить геометрию детской комнаты, коридора и санузла при входе в квартиру. Получившиеся сложные по конфигурации объёмы позволили компактно разместить в гостевом санузле постирочную зону, создав иллюзию прямоугольного помещения. В комнате сына образовавшуюся диагональ визуально скорректировали встроенной мебелью и направлением укладки паркетной доски. В коридоре же получилось выделить места для встроенных шкафов не только по длинной стене при входе, но и напротив ванной комнаты рядом со спальнями.













Ремонт. Новые перегородки построили из пазогребневых блоков толщиной 80 мм. Однако перегородка между спальней супругов и детской выполнена из гипсокартона на металлическом каркасе со слоем звукоизоляции внутри. Чтобы звуков не было слышно, сначала на профили каркаса и по периметру всей будущей стены смонтировали уплотнительную ленту, которая съедает вибрации и звуки. Для обшивки использовали специальный звукоизоляционный гипсокартон. Внутреннее пространство перегородки заполнили матами звукоизоляционной минеральной ваты. Все перечисленные работы оказались бы полумерами, если ставить обычные розетки. Опытные строители при монтаже электрики использовали звукоизоляционные подрозетники. Отверстия, через которые выводили провода, обмазывали звукоизоляционным герметиком. В подготовленные гнёзда поверх звукоизоляционных ставили уже обычные пластиковые подрозетники. Одна из стен кухни-гостиной, которая граничит с соседней квартирой, тоже изолирована от шума, но по бескаркасной технологии. Сначала по периметру также крепили уплотнительную ленту. Затем к стене приклеили звукоизоляционную подложку толщиной 3 мм. Поверх смонтировали ГВЛ-плиты с промазкой стыков звукоизоляционным герметиком. Их закрыли звукоизоляционной мембраной высокой плотности толщиной 4 мм и обшили листами ГКЛ со свойством звукоизоляции. Все материалы монтировали с разбежкой стыков.
Дизайн. В основе интерьерной концепции — экостиль, который прослеживается не только в приятных природных оттенках, плетёных аксессуарах и декоре комнатными растениями. Обстановка построена на принципах эргономики, удобного и рационального расположения предметов. В интерьере нет лишних деталей, сложных украшений.
Поскольку яркий верхний свет способствует бодрствованию, в обоих санузлах предусмотрен дежурный свет — встроенная на уровне высоты розеток подсветка, которой пользуются ночью
Рассказывает автор проекта
Дизайнер Лина Савина
Эта квартира для семьи из четырёх человек, включая годовалого малыша, олицетворяет эстетику экостиля с использованием природных оттенков и экологичных материалов. В общем пространстве кухня органично переплетается с гостиной. Натуральные материалы привносят в интерьер лёгкость и природную привлекательность. Такая кухня-гостиная, с её простотой и теплом, становится идеальным местом для семейных завтраков и вечерних посиделок. В комнате подростка контрастные элементы и современные текстуры создают пространство для выражения индивидуальности. Удобная мебель и интеллектуально спроектированные зоны для отдыха и учёбы формируют приватное и вдохновляющее пространство. Спальня настраивает на атмосферу покоя и расслабления, здесь используются нежные оттенки и натуральные ткани. Особое внимание в дизайне уделено созданию множества мест для хранения. Интегрированные шкафы и полки становятся не только функциональными элементами, но и дополняют общую гармонию интерьера.
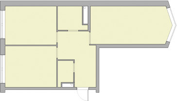
План до ремонта

Технические данные
до ремонта:
- общая площадь — 70 м2
- высота потолков — 3,14 м
после ремонта:
- общая площадь — 67 м2
- высота потолков — 2,95 м
Весь объект
- Двери: GARDIAN (входная), Dorian (межкомнатные)
- Стены: пазогребневые блоки 80 мм, ГКЛ
- Плинтусы: МДФ
- Подоконники: искусственный камень, МДФ, шпон
- Электроустановочные изделия: Schneider Electric
- Оборудование (кондиционеры, радиаторы): кондиционеры Haier, радиаторы ЦДМ DIAMETRO
- Окна: от застройщика
- Шкафы встроенные: столярная мастерская (на заказ)
- Светильники: NovoTech, Lightstar, Lamps Shop, LA REDOUTE INTERIEURS, Elektrostandard, Arte Lamp, TK Lighting, Mantra
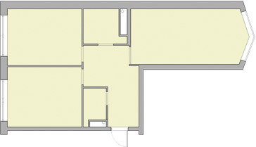
План после ремонта

1. Детская 14,1 м2
- Пол: инженерная доска Lab Arte
- Стены: краска Little Greene, обои Cole & Son, стыковочный профиль Laconistiq
- Мебель: Sensor Sleep, столярная мастерская
- Светильники: Arlight, Lightstar, NovoTech, Lampatron
- Аксессуары: DESIGNBOOM.RU, CHIARO HOME
- Картины: ART-MELETE
2. Туалет 3,8 м2
- Пол: керамогранит VIVES Ribadeo Gredos
- Стены: керамогранит VIVES Ribadeo Gredos, краска Little Greenе
- Сантехника: Hansgrohe Vernis Blend, «Сунержа Богема», Ceramica Nova, Paffoni Tweet Round
- Мебель: столярная мастерская
3. Прихожая 10,2 м2
- Пол: керамогранит VIVES Ribadeo Gredos, инженерная доска Lab Arte
- Стены: Little Greene
- Мебель: столярная мастерская
- Светильники: NovoTech
- Аксессуары: DESIGNBOOM, CHIARO HOME
4. Спальня 14,4 м2
- Пол: инженерная доска Lab Arte
- Стены: краска Little Greene, обои Fun House Store
- Мебель: SKDESIGN, столярная мастерская, Baby Chipak, Lifeyhome
- Светильники: LA REDOUTE INTERIEURS, Arte Lamp, TK Lighting
- Аксессуары: DESIGNBOOM.RU, CHIARO HOME
- Картины: ART-MELETE
5. Ванная 3,8 м2
- Пол: керамогранит Atlas Concorde NORDE Magnesio
- Стены: керамогранит Atlas Concorde NORDE Magnesio
- Сантехника: ArtCeram, Hansgrohe Vernis Blend, «Астра- Форм Нейт», «Сунержа Богема», Ceramica Nova
- Мебель: столярная мастерская
6. Кухня-гостиная 20,7 м2
- Пол: инженерная доска Lab Arte
- Потолок: ГКЛ, краска Little Greene
- Стены: краска Little Greene, керамогранит Vives Kent Firle-R Nieve
- Мебель: LA REDOUTE INTERIEURS
- Картины: ART-MELETE
- Бытовая техника: вытяжка Kuppersberg, холодильник Whirlpool, ПММ, варочная панель — Siemens
