В гостях хорошо
Архитектор Елена Потёмкина оформила интерьер гостевого дома, предназначенного для отдыха на природе и домашних праздников.

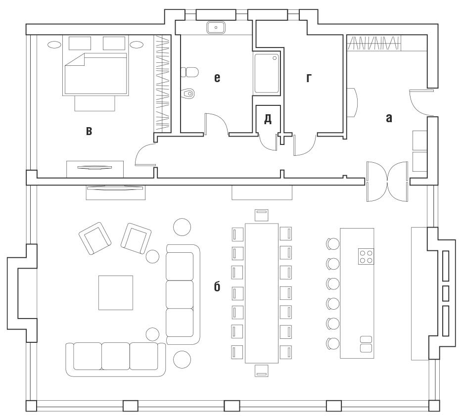
Заказчик поручил Елене разработать интерьер гостевого дома, основной функционал которого планировался как ивент–пространство. Именно поэтому большую часть площади архитектор отдала под просторную общественную зону. Помимо гостиной с мягкой диванной группой здесь есть столовая с большим столом на шестнадцать человек, кухня с казаном, настоящим дровяным мангалом и даже тандыром. Раздвижные окна–перегородки в пол с трёх сторон помещения наполняют пространство светом и при необходимости превращают гостиную в уличную беседку, откуда можно выйти на открытую террасу у воды. «Основные центры притяжения в доме — два «очага»: камин и мангал, — поясняет автор проекта. — Мы расположили их напротив друг друга, на фронтальных стенах, подчеркнув таким образом их главенствующее положение. Обеденный стол — ещё одна значимая деталь в интерьере. Он выполнен по нашему проекту. Для его создания использовали спилы из ствола карагача длиной более пяти метров. Как оказалось, ствол такой длины — большая редкость, и мы его искали почти полгода».









В оформлении использованы дорогие, статусные марки мебели, натуральные, природные материалы и приятные фактуры, которые создают, с одной стороны, атмосферу отдыха, а с другой — динамичную среду для домашних праздников. Пол в гостиной и спальне выложен паркетной доской из тонированного дуба, в холле и коридоре —мрамором с инкрустацией из латуни. Стены декорированы деревянными буазери и рельефными наборными панелями из мрамора, а потолок — деревянными панелями и балками. Пристальное внимание архитектор уделила тактильности предметов. Это мягкие и уютные обивки мебели, ковры, тёплые поверхности дерева, к которым приятно прикасаться. В свою очередь натуральный гранит с колотым краем и холодные гладкие поверхности мрамора привносят в интерьер эффектный контраст. Стилистика пространства в меру современная с налётом лоска и респектабельности выбрана не случайно, ведь по заданию заказчика гостевой дом должен был стать логическим продолжением основного дома как во внешнем облике, так и во внутреннем. «У хозяев довольно часто бывают гости: партнёры по бизнесу, медийные личности,— замечает Елена.— Шумные и весёлые застолья могут помешать маленьким детям, поэтому заказчик решил создать отдельное пространство, позволяющее отдыхать и детям, и взрослым, не мешая друг другу. Даже несмотря на некую функциональную легкомысленность дома, мы старались сделать всё, чтобы интерьер соответствовал статусу хозяев».
«Самое интересное в нашей работе — люди. Заказчик всегда является отправной точкой в любом проекте. Тиражировать одни и те же приёмы из проекта в проект — это скучно. И потому каждый архитектор, дизайнер должен быть в меру гибким и чутким, чтобы услышать желания хозяев, и в то же время оставаться весьма убедительным и твёрдым, чтобы направить проект в гармоничное русло. При разработке своих интерьеров я стараюсь избегать ярко выраженных трендов и тенденций, так как стремлюсь создать вневременное пространство, которое будет долго оставаться актуальным»
Общая площадь 180 м2

Автор проекта архитектор Елена Потёмкина Поставка мебели, светильников, техники компания DK Project
Фото: Сергей Красюк