Соседство с прекрасным
Юлия Долина и Филипп Черников из студии CH.Archteam создали интеллектуальное пространство для уединения, отказавшись от декора в пользу бесшумного фона для уникальной коллекции книг и искусства

Этот загородный дом из клееного бруса стал для дизайнера Юлии Долина и архитектора Филиппа Черникова проектом трансформации — не только пространства, но и восприятия. Первоначальная концепция в духе современной неоклассики с обилием декора уступила место новому видению заказчика: он пожелал видеть сдержанное, со временное и дышащее пространство для уединенного отдыха и приема близких. Ключевыми стали слова — функциональность, личный смысл, тактильность натуральных материалов и отсутствие визуального шума. Пространство должно было стать нейтральным, но вы разительным фоном для уникальной коллекции искусства и книг. «Наша задача заключалась в тактичном переосмыслении исходной идеи проекта, ранее предложенной заказчику другим дизайнером. Архитектурная планировка и несущие стены были неизменны, поэтому мы сосредоточились на деталях. Мы отказались от тотальной облицовки декоративными деревянными панелями в пользу светлого, нейтрального фона, чтобы создать чистый холст для личных коллекций владельца — библиофила и тонкого ценителя искусства. Особое внимание было уделено системам хранения и библиотечным системам, интегрированным в архитектуру дома», — говорит Филипп Черников.













Особую сложность проекту придала работа с «живым» материалом — клееным брусом, требующим нестандартных инженерных решений для учета усадки. Каждое решение, от крепления гипсокартона до монтажа винтовой лестницы, требовало инженерной точности и специальных технических решений, таких как теневые профили и панели с вертикальными прорезями для креплений, позволяющие дому «жить своей жизнью». Сердцем дома стала двухсветная гостиная — аллюзия на традиционные усадебные библиотеки с рядами книг. Ее ритм задают стеллажи, устремленные к потолку, и мраморный портал камина высотой 2,4 метра. Он подчеркивает пропорции гостиной и поддерживает атмосферу сдержанной монументальности, присущей всему проекту. Центральным элементом пространства стала трехметровая люстра Reef от DesignHeure. Ее графичный скульптурный облик меняется в зависимости от ракурса и игры естественного света. Паря в пространстве, она объединяет оба уровня, становясь связующим звеном между архитектурными вертикалями. Интерьер балансирует на грани эпох и стилей. Классические каминные порталы соседствуют с постмодернистскими креслами MODÉNATURE, а строгая мебель POLIFORM — с восточными мотивами раздвижных перегородок. В результате получилось сдержанное, интеллектуальное пространство, где нейтральная палитра и отсутствие визуального шума создают идеальный фон для жизни, мыслей и диалога с искусством.
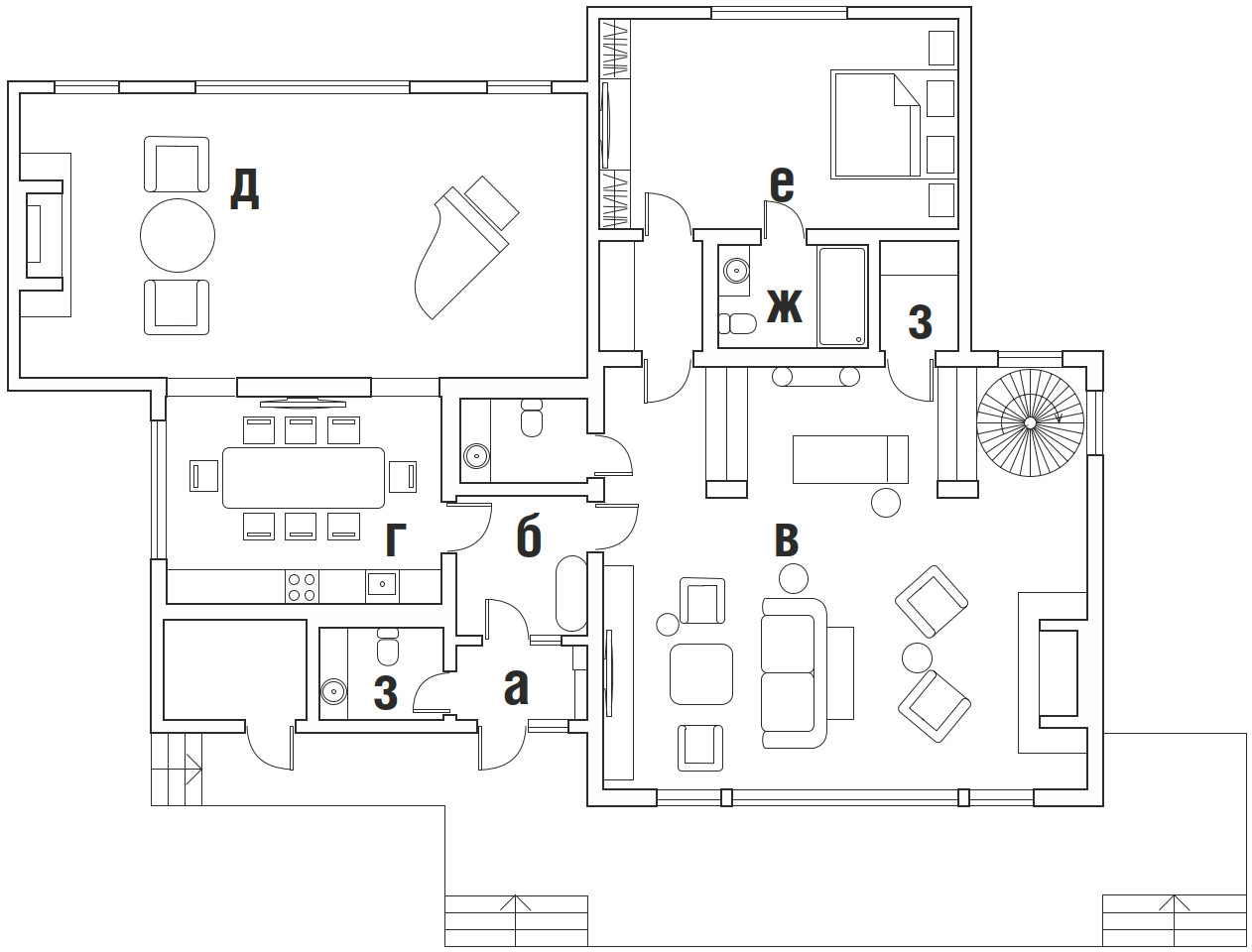
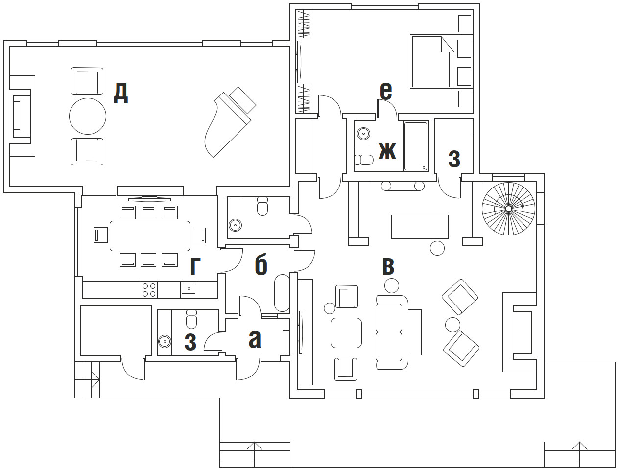
Общая площадь 253 м2


Фото: Михаил Чекалов. Стилист: Юлия Карпухина
Авторы проекта: дизайнер Юлия Долина, архитектор Филипп Черников, студия ch.archteam (www. ch-archteam.com). Изготовление библиотеки, стеновых панелей, обшивка балок, двери, оконные порталы и наличники, тумбы, встроенные шкафы и ТВ-зона: Санкт-Петербургская мебельная мастерская Алексея Тискина (www.alexeytiskin.ru ). Поставка освещения: компания «ЦЕНТРСВЕТ» (www.centersvet.ru). Поставка мебели: компании Modenature (www.modenature.ru), «ТРИО-интерьер» (www.trio.ru). Поставка сантехники: компания «Макслевел» (www.maxlevel.ru).