Современная усадьба вдохновила дизайнера Алексию Братушкову на создание интерьера, сочетающего в себе парадность и строгость ар-деко с уютом и комфортом повседневной жизни
Текст: Оксана Бояринцева
Чтобы придать гостиной-столовой актуальное звучание, дизайнер добавила в нее эклектичные нотки: уютные текстуры, люстру, мягкую мебель обтекаемых современных форм в сочном цвете хурмы. Эти детали смягчают чопорность интерьера и располагают к неформальному общению за столом. Кресла Julet, стулья Midas, Creatica. Журнальные столики, Colleccion Alexandra. Ковер Soho, «Ами Ковры». Обеденный стол, Of Interni. Картина, Joli Gantier. Лепной декор, художник Сергей Пакусаев. Люстра Chandelier by Gino Sarfatti, Flos, компания Rum 24.
Двухэтажный особняк, преобразить который предстояло дизайн-бюро AlexaBrattdesign, находится в историческом поселке среди хвойного леса. Внешний вид дома настраивает на торжественный лад: это настоящая усадьба с классической архитектурой, высокими потолками, аллеями, фонтаном и коваными воротами, увенчанными картушем. Тем не менее особняк, построенный десять лет назад, нужно было «осовременить», сделать интерьер более актуальным. «В последнее время заказчики всё чаще обращаются к нам с просьбой придать дому «новое лицо», — рассказывает автор проекта дизайнер-декоратор Алексия Братушкова. — Мы меняемся каждый день, и наши представления о комфорте, красоте, гармонии меняются вместе с нами». За основу преображения резиденции «Наследие» дизайнер взяла стиль ар-деко, изначально заложенный в оформление и отделку дома. Однако вместо прежней театральности в обновленном интерьере главенствует концепция «тихой роскоши»: на смену ярким акцентам и глянцу пришли более современные композиции, трендовый декор и ткани нейтральных тонов.
На первом этаже находятся гостиная-столовая с выходом в уютную зону патио, кухня с верандой для летних посиделок, спальня с панорамным видом на лес — большие окна в лучших усадебных традициях и высокие потолки делают дом по-настоящему величественным. Здесь же расположилась просторная спа-зона с бассейном и хаммамом. Именно оформление бассейна послужило отправной точкой для декора всех помещений в доме: это адаптация американского ар-деко под светлую цветовую гамму с элементами минимализма. На дне бассейна — фото нью-йоркского перекрестка с его урбанистическими мотивами и желтыми такси, а на потолке этот же сюжет зеркально отображен в рельефном панно из искусственной кожи.
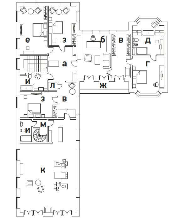
Двухэтажный особняк с цокольным этажом имеет площадь 1058 кв. м и высоту потолков около 4 м. В доме большое количество панорамных окон, напоминающих об архитектуре классических усадеб: они открывают вид на заповедный лес с его вековыми соснами и пихтами.
Хозяева попросили внести в интерьер современные тренды. Один из них — размывание границ между домом и участком: к кухне для завтраков прилегает летняя веранда, из гостиной есть выход в зону патио. Обеденный стол, Colleccion Alexandra. Кресла, Fratelli Barri. Текстильное оформление, Елена Некрасова (AlexaBrattFurniture). Флористические композиции и ботанические копии растений, Екатерина Ванюшина, компания «Росска».
Плетеная мебель изготовлена на заказ. Подушки и текстиль, AlexaBrattFurniture.
Частый запрос заказчиков — трансформация существующего интерьера в новый: близкий по стилю и наполнению, но более актуальный.
Кабинет выдержан в элегантном, строгом стиле. Атмосферу сдержанной роскоши создают обои (компания «Артик») глубокого винного оттенка, имитирующие кожу ската, мебель Sunrise от Giorgio Сollection из кленового шпона «птичий глаз», уютный ковер на дымчатом паркете «английская елка» от компании «Олимп Паркета» и винтажные литографии на стенах.
Алексия Братушкова назвала свой проект «Резиденция «Наследие»: работая над интерьером, она старалась одновременно следовать трендам и творить историю. Усадебная классика воплотилась в окнах с классической расстекловкой, люстре с лампами-свечами, мебели ручной резьбы.
Спальня на первом этаже выполнена в нейтральных тонах с небесно-голубыми акцентами. Отправной точкой для интерьера стала фотография из коллекции хозяина, которую дизайнер поместила в изголовье кровати. Все спинки кроватей выполнены на заказ из натуральной кожи, в них продумали подсветку для вечернего чтения. Постельное белье, подушки, Frette. Прикроватные тумбочки, Artfabric.
Автор проекта дизайнер-декоратор Алексия Братушкова, дизайн-бюро AlexaBrattdesign.
Гостиная-столовая — еще одно яркое сочетание ар-деко с визуальной сдержанностью. «Парадная» составляющая включает в себя пол из итальянского мрамора с геометричной раскладкой и панели с гипсовой резьбой, орнамент которых заимствован из интерьера нью-йоркского лофта эпохи ар-деко. Над камином размещена композиция из гипса по мотивам скульптурной группы Антонио Кановы «Три Грации». Для равновесия дизайнер добавила в интерьер легкий, современный декор: мебель обтекаемых форм, актуальную живопись и уютные, текстурные ткани: английскую шерсть, букле, тутовый шелк. «Использование только натуральных материалов — основной принцип в отделке дома: это натуральный камень, дерево экзотических пород, кожа, замша, шерсть, шелк в сочетании с элементами из стекла и металла», — отмечает Алексия Братушкова.
Дизайнер ушла от классического ар-деко – в обновленном интерьере главенствует концепция «тихой роскоши». Ванная комната при спальне на первом этаже облицована натуральным итальянским мрамором Nero Marquino — черный цвет и глянцевая фактура, характерные для ар-деко, в сочетании со светлыми стенами позволяют добиться вожделенного эффекта неброской роскоши. Сама ванна расположилась на подиуме в один уровень с окном. Ванна Jacuzzi, сантехника и аксессуары Artcheram, Keuco, компания Decorroom. Смесители, Fantini. Люстра Zero, Panzeri, компания Rum24.
Натуральные материалы — камень, дерево, кожа, шелк — «звучат» в интерьере эффектно и современно. Все комнаты имеют свой характер, но отлично вписываются в общую стилистическую концепцию. В интерьер этой спальни ненавязчиво вплелись китайские мотивы: круглая картина с традиционным изображением журавлей и бамбука, ваза на столе с рыбками кои. Кровать изготовлена по индивидуальному заказу. Кресла Whooper, Creatica. Столик, Charles Edwards. Тумбочка, Casa Padrino. Комод, Ralf Lauren Home. Настольная лампа, люстра Crystal Lux, компания Rum 24. Постельное белье, Frette.
Спа-зона с бассейном — яркое воплощение американского ар-деко. Интерьер получился респектабельным, но при этом свежим, легким, не перегруженным деталями. На потолке — панно из искусственной кожи: стилизованное изображение ньюйоркских улиц в графичной и рельефной технике. Светильники, Bover, «Трио Интерьер». Шезлонги, Verandaru.Текстиль, AlexaBrattFurniture.
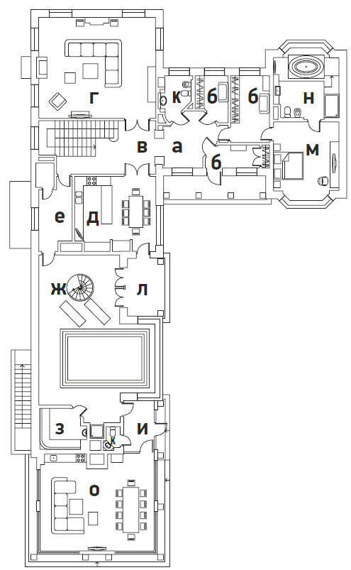
На втором этаже размещена более приватная зона. Это хозяйский блок с просторным кабинетом, спальней, гардеробной и ванной комнатой, а также две гостевые спальни, детская и просторный спортзал. На фото — гостевой санузел.
Все комнаты имеют собственный образ. «Китайскую спальню отличает декор: изображения журавлей и бамбука, сочетание темной кожи в обивке кровати с белыми геометричными вставками, — рассказывает автор. — Спальня на первом этаже вдохновлена фотоработой из личной коллекции хозяина дома, которую мы повесили в изголовье кровати. Интерьер получился артистичным, живым и наполненным деталями, которые хочется рассматривать и изучать. Это всего лишь начало для долгой истории, наполненной семейными обедами и вечерами, праздниками и спокойным отдыхом в спа».
Прекрасный зимний сад-атриум выполняет роль второй гостиной. На потолке расположен световой фонарь, к которому склонились пышные кроны вековых сосен. Центральная композиция — арочный свод с камином, выполненным из исторического тесаного кирпича имперских времен. Помещение условно разделено на две зоны: столовую с уникальным столом из стекла и дерева ручной резьбы и лаундж с уютным диваном Marrakech и креслами Ray от Creatica. Кожаные стулья, Eichholtz. Ковер Bloom, «Ами Ковры».
В цокольном этаже расположены винная комната с кожаными креслами и коллекционными винами (на фото), домашний кинотеатр и профессиональная кухня.
Открытая зона патио с выходом из гостиной и видом из панорамных окон столовой — еще одна уютная релакс-зона. Подушки и текстиль во всем доме украшает авторская вышивка с логотипом дома Heritage Rezinence.
Автор проекта дизайнер-декоратор Алексия Братушкова, дизайнер по текстилю Елена Некрасова, Флорист Екатерина Ванюшина, Дизайн-бюро Alexabrattdesign (www.alexabratt.com).