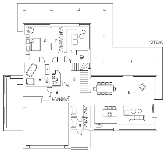
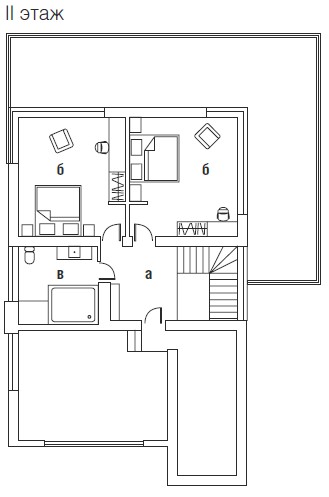
Разрыв шаблона
Единственное пожелание, которое высказал владелец дома: «Хочу повысить качество жизни». Это легло в основу архитектурной и дизайнерской концепции проекта

Современный, гармоничный, независимый от сиюминутных тенденций — главные характеристики интерьера, который спроектировали архитекторы Шамсудин Керимов и Катерина Кудинова. В доме чувствуется атмосфера спокойствия, инаковости — такую чаще увидишь на Западе, чем у нас. Во главу угла авторы проекта поставили задачу выйти на другой уровень и создать принципиально иную атмосферу. Это особенно важно сегодня, учитывая ту скорость изменений, обновлений, развития всего и вся в мире. Именно поэтому интерьер, по мнению архитекторов, должен строиться прежде всего на работе с пространством и уже потом насыщаться деталями и декором, которые не несут серьёзной смысловой нагрузки и легко меняются в зависимости от настроения.


«Мы стремились сделать лёгкий и современный дом, который располагал бы к отдыху, долгим посиделкам с друзьями (хозяева очень гостеприимные люди), — рассказывает Шамсудин. — Такой интерьер, который был бы в гармонии с человеком, а не преобладал над ним. Очень часто мы видим, как создаются интерьер–картинка для инстаграма (соцсеть признана в РФ экстремистской и запрещена), интерьер — музейный зал или интерьер–выставка, который больше похож на шоу–рум мебели без какой-либо дизайнерской или архитектурной мысли. Но во всём должна быть золотая середина и тонкая грань, отделяющая хороший проект от надуманного». Архитекторы убеждены, что много воздуха в пространстве иногда понимают буквально (много воздуха часто воспринимается как пустота), а современный
