Пространство свободы, 115 м2
Лаконичный интерьер этой московской квартиры по проекту студии ub.design стал воплощением идеи об интерьере как месте отдыха от вызовов города

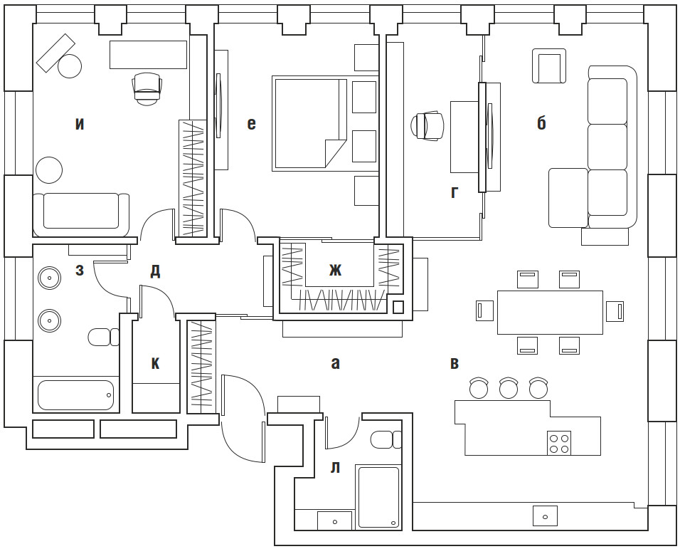
Квартира находится в одном из элитных жилых комплексов, который недавно появился на карте московских Хамовников. Ее хозяева пришли в архитектурную студию Бориса Уборевича-Боровского с запросом создать интерьер в фирменном стиле команды — современном, легком и функциональном. «В этом проекте нам очень повезло с заказчиками. Это люди с утонченным вкусом, которые с большим вниманием и интересом относятся к дизайну. Во время работы мы были с ними в постоянном диалоге, и для нас очень ценно, что заказчики полностью доверились нам, как профессионалам», — рассказывает руководитель. Как отмечает Борис Уборевич-Боровский, в интерьере главную роль играет его эргономика. Изначально свободная планировка квартиры, с одной стороны, позволяла гибко подходить к созданию планировочного решения. При этом большое количество окон — а их в квартире 12 — усложняло эту задачу, так как расположение стен и перегородок должно было быть привязано к ритму оконных проемов. Кроме того, архитекторам предстояло разместить в квартире не только полноценную общественную зону, главную спальню и детскую, но и рабочий кабинет хозяина квартиры. Место для него выделили в периметре единой зоны гостиной и столовой, отделив широким пилоном и раздвижными стеклянными перегородками. Это позволило решить функциональную задачу, но при этом визуально не перегрузить интерьер.
Конструкция из дымчатого стекла, а также все системы шкафов и настенных деревянных панелей, которыми декорирована входная зона, были созданы на заказ в архитектурной студии ub.design. Также в натуральном дереве выполнены полы в жилых зонах и фасады кухни. Именно кухня, заказанная в одной из лучших итальянских студий Valcucine, стала отправной точкой для подбора всех элементов из натурального дерева. «Мы всегда должны понимать, как материалы сочетаются в интерьере, чтобы разнообразие фактур не приводило к появлению визуального шума.

















Для этого мы взяли образцы деревянных кухонных фасадов и при выборе материалов для полов, шкафов и настенных панелей отталкивались от них», — рассказывает автор проекта. Палитру натуральных оттенков дополнил светло-бежевый и жемчужно-серый текстиль, натуральная кожа и натуральный камень песочных оттенков для кухонного острова и фартука.
Общую сдержанную палитру интерьера дополняют несколько цветовых акцентов, что особенно выделяет этот проект среди работ архитектурной мастерской. Авторы отмечают, что подбор акцентного цвета в интерьере — во многом противоречивая задача, так как он может быстро надоесть или перестать соответствовать настроению заказчика. «Здесь мы решили рискнуть и дополнить нейтральную гамму гостиной насыщенным, но при этом сдержанным синим цветом для пилона, отделяющего рабочий кабинет. Также в ванной появились голубо-бирюзовые стеклянные раковины, а в детской — сложный оттенок зеленого», — говорит Борис. Четкая геометрия, сбалансированная цветовая гамма и грамотно спланированное пространство формируют современный городской интерьер, который решает главную задачу — быть для человека местом отдыха и уединения, свободного от суеты и постоянных вызовов мегаполиса.
Общая площадь 115 м2

Фото: Михаил Лоскутов. Стилист: Yes We May. Руководитель проекта Борис Уборевич-Боровский, архитекторы Андрей Шалай, Александра Кот, Екатерина Спружевник, UB.DESIGN (www.ub.design) Подрядчик компания «Логика Ремонта»