Новое прочтение
Архитекторы из бюро Марии Рублевой провели масштабную работу: полностью реконструировали дом и соединили продуманный классический интерьер с современной архитектурой

В Rubleva Design&Architecture обратилась семья с ребенком, которая приобрела готовую «бетонную коробку» в новом подмосковном поселке. «Фасад выглядел непривлекательно, — вспоминает руководитель проекта Мария Рублева, — и мы полностью его разобрали вместе со стенами, оставив только монолитные колонны. На этой базе получился совершенно новый дом: мы пристроили к нему террасы, лестницы, навесы. Первым делом спроектировали эффектный портал: это и визуальная изюминка, и практичное крыльцо, которое защищает от непогоды. Предыдущее решение не предполагало даже навеса. Получилось так, что прежний облик дома теперь совершенно невозможно узнать».
Необычность этого проекта основана на сочетании классического интерьера, близкого хозяевам по духу, и современной архитектуры, продиктованной формой дома и окружающими зданиями. Пространство задумано светлым и воздушным. В холле первого этажа увеличили проем в перекрытии, чтобы наполнить его естественным светом и подчеркнуть форму белоснежной винтовой лестницы с черными коваными перилами. Изгибы лестницы перекликаются с выложенной на полу изящной линией из керамогранита: она задает ритм от самого входа и ведет к культовому шезлонгу CASSINA. Такое же решение архитекторы использовали в кухне-столовой — там темная полоса окружает стол.




















Для заказчиков было важно видеть в интерьере не только воздушность, но и цвет, поэтому в доме появились яркие элементы в виде акцентных решений. Светлый оттенок стен сочетается с панелями, в которых наклеены цветные шелковые обои. На первом этаже за основу взяли голубой цвет, на втором — нежно-фиолетовый. Классический стиль дает о себе знать не только в характерных молдингах, кессонах и гипсовых карнизах, но и в «дорогих», продуманных решениях. Например, пол из инженерной доски EBONY&Co изготовлен в уникальном выкрасе: оттенок выбирали специально для этого интерьера, а уже после укладки паркета мастера нанесли на него специальный состав — получился красивый эффект обжига. Одно из самых ярких помещений — парадный санузел: это некий оазис, который отражает характер заказчиков. Автор проекта сравнивает его с театром, который отражает саму суть дома. Пространство похоже на волшебный лес: черные с золотом обои с растительным орнаментом, торшеры VETVI в форме сказочных деревьев, круглое большое зеркало, черный керамогранит с белыми прожилками. Природные лесные мотивы проходят сквозь весь интерьер: в столовой задает настроение люстра, напоминающая листья деревьев, а в спальне хозяев за изголовьем кровати разместилась панель, на которую наклеены обои в голубых и зеленых то - нах с цветочным орнаментом и птицами. «В подвесах-колокольчиках тоже спряталась маленькая птичка, которая дарит ощущение весны, жизни и легкости. Главная спальня получилась светлой, наполненной теплой и уютной атмосферой. В любое время года она создает хорошее настроение с утра и заряд бодрости на весь день», — добавляет Мария. Сердце дома — гостиная, которая отделяется от кухни-столовой эффектным каминным порталом. Настоящий дровяной камин выполнен из латуни, а красотой его огня можно наслаждаться сразу с двух сторон — и из зоны гостиной, и со стороны столовой. Центр композиции — акцентная люстра, собранная из хрустальных элементов: она эффектно подсвечивается сверху. «В гости - ной разместился большой и удобный диван BAXTER, — делится Мария. — Изначально для проекта выбрали другой диван, когда же мы с заказчиками приехали за мебелью, хозяин дома сел на эту модель и сказал, что это самый удобный диван в его жизни». Отдельная история внутри дома — детская зона. Маленький хозяин комнаты очень любит море, поэтому его детская выполнена в сложном зеленоватом оттенке, а за изголовьем кровати — обои с морскими жителями. На первом этаже расположилась детская игровая: в нее можно пройти из гостиной. За зеркальными дверьми скрывается целое пространство для детей с импровизированной сценой и софитами, домашним кинотеатром и спортивным уголком. При этом взрослые могут открыть двери и наблюдать за детьми из гостиной. «Этот дом словно волшебная шкатулка с секретами, — размышляет Мария. — Каждый сантиметр продуман до мелочей, а каждая идея носит не только визуальный, но и функциональный смысл. Для нас было важно найти место для всех сценариев жизни и всех увлечений наших заказчиков».
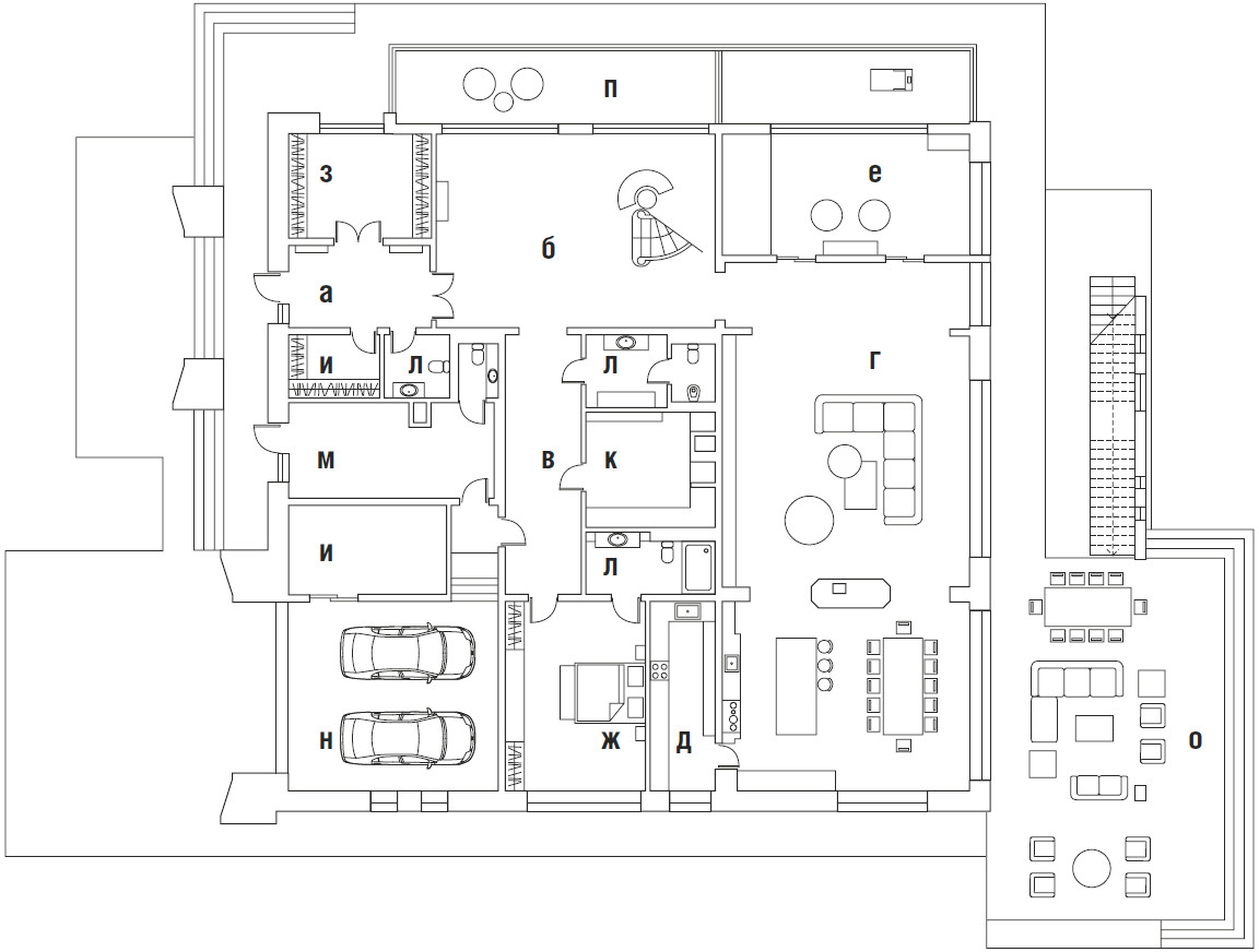
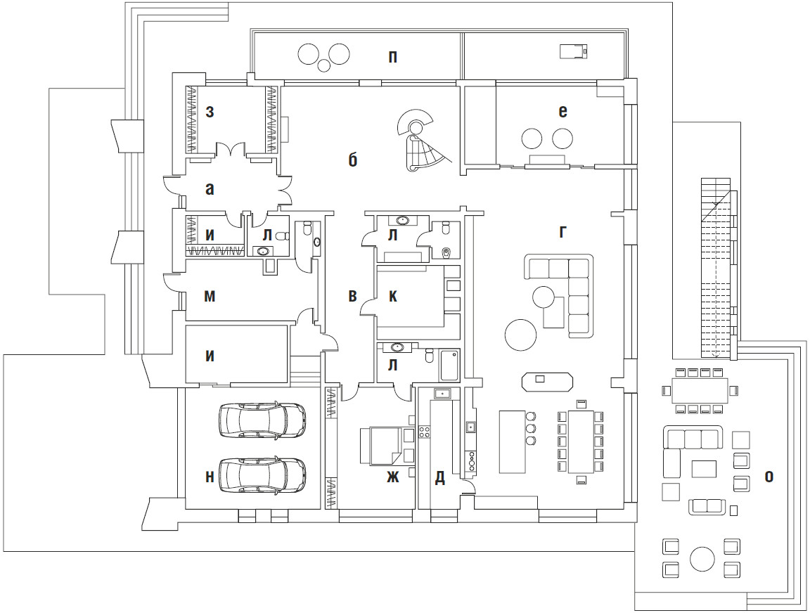
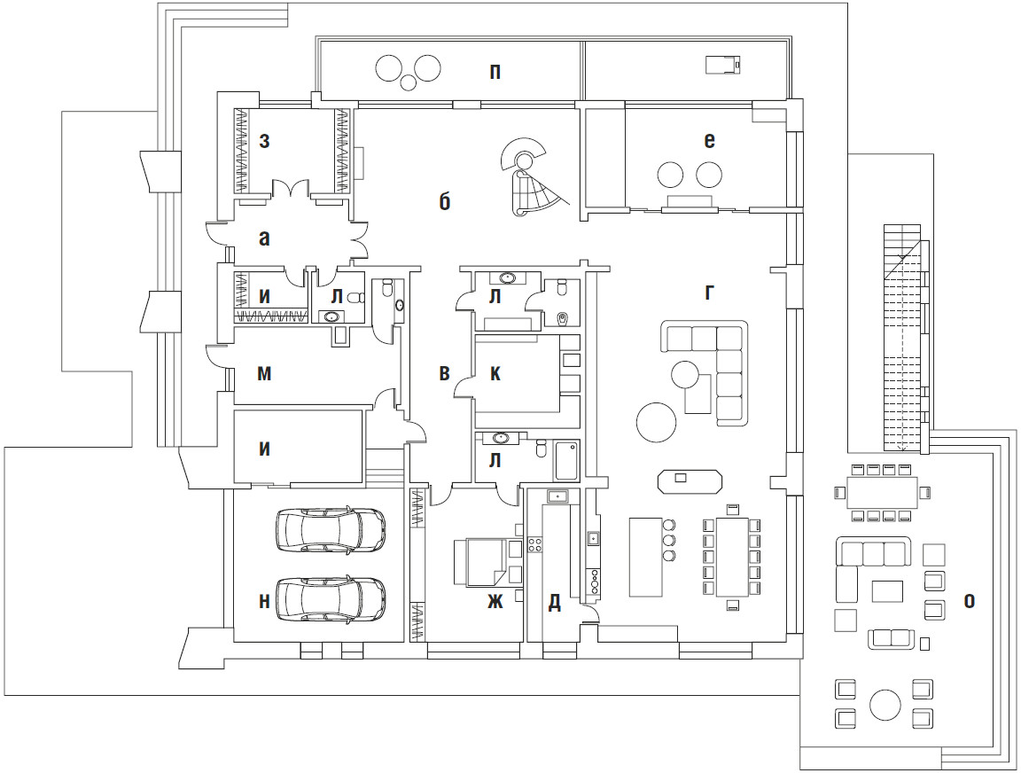
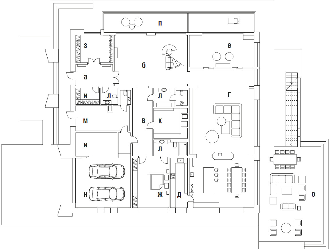
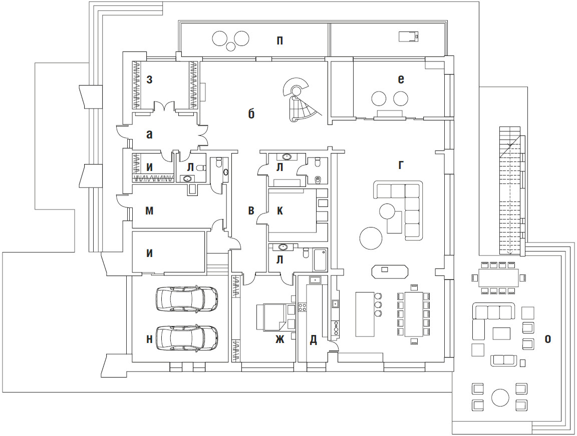
Общая площадь 800 м2


Проектирование бюро Rubleva Design & Architecture, руководитель Мария Рублева (www.rubleva-design.ru)