Навстречу природе
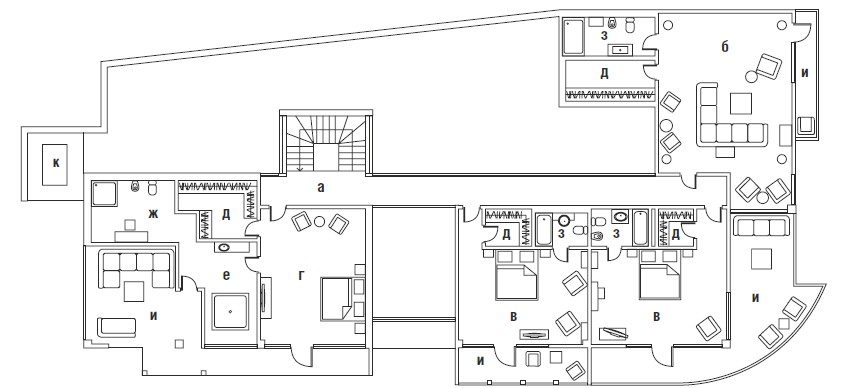
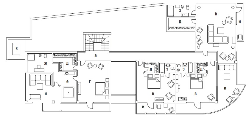
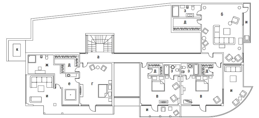
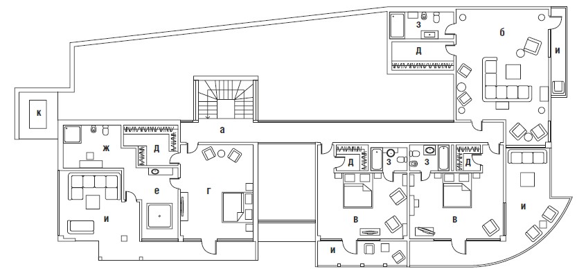
Этот дом в окрестностях Сочи предназначен для отдыха большой семьи. Главными в его интерьере стали натуральные материалы и декоративные фактуры, разработанные дизайнером специально для проекта

Автор проекта Мария Боровская: «Этот проект — один из моих любимых. Здесь мне, благодаря безоговорочному доверию со стороны заказчика, удалось максимально проявить свои творческие способности дизайнера. В нём есть контраст, сложная геометрия, необычные детали, цвет. Цвет я особенно люблю и приучаю к нему своих заказчиков. У каждого оттенка своё влияние, и если подобрать его в соответствии с характером, темпераментом, внешним видом человека, то можно создать яркий, подчёркнуто индивидуальный интерьер»



Вилла на Черноморском побережье досталась автору проекта с частичной отделкой. Над ней уже поработали двое дизайнеров, но результат заказчика не устраивал. Отчаявшись, владелец виллы обратился к своим знакомым, которые посоветовали ему молодого, талантливого и проверенного дизайнера Марию Боровскую. Первая встреча состоялась в подмосковном доме заказчика. Главной его просьбой было создать безупречный интерьер, чтобы в нём всё было продумано до мелочей, как в дорогой первоклассной гостинице. «Каждый наш разговор заканчивался словами: «Маша, если ты считаешь, что это будет красиво и правильно, делаем так, — вспоминает дизайнер. — По сути, он дал мне карт–бланш, полностью доверившись моему вкусу, и до конца не знал, что происходит на объекте! Конечный результат стал для него сюрпризом, но он оправдал все ожидания». Дизайнер основательно поработала
