На солнечной стороне
На создание интерьера архитекторов Александру Казаковцеву и Марию Махонину из студии «MK-Interio» вдохновила лоджия с красивым панорамным видом на городской парк. Именно она стала сердцем квартиры и главной эстетической изюминкой

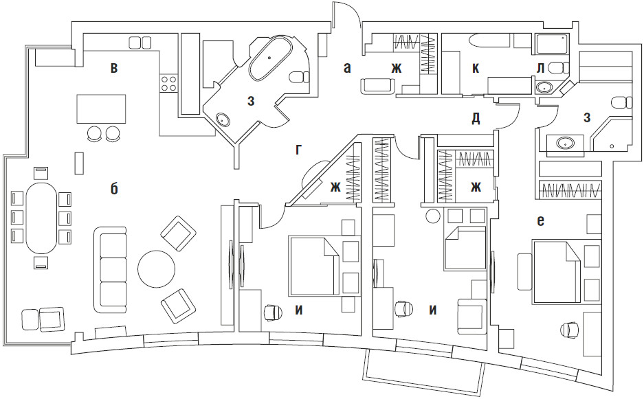
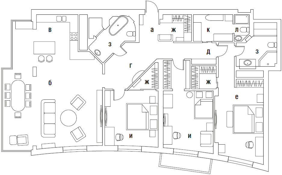
Квартира находится в центре Санкт-Петербурга. Владельцы — семейная пара с двумя детьми — обратились в архитектурную студию «МК-Интерио» с просьбой объединить две квартиры в одну. Перед дизайнерами Александрой Казаковцевой и Марией Махониной стояла сложная задача — учесть пожелания каждого члена семьи и создать удобную, функциональную планировку. «Заказчик с самого начала четко представлял, что хочет видеть в своей квартире большое количество функциональных зон и мест для хранения, — рассказывает Александра, дизайнер проекта. — Хозяева хотели добиться сочетания изысканности и домашнего уюта, это было самым главным».
Особенностью и вдохновением всего интерьера стало наличие большой лоджии с панорамным видом на городской парк.
Изначально она была автономной, поэтому было принято решение присоединить лоджию к площади помещения, убрав ограждающие конструкции. Таким образом гостиная расположилась в самом красивом уголке квартиры.












«Донося свою эстетическую мысль до заказчика, очень важно слышать его пожелания, — дополняет Александра. — В данном случае хозяева хотели иметь зону с биокамином и телевизором. Это непростая техническая задача, но мы приложили все усилия, чтобы выполнить ее. Нами были тщательно разработаны эскизы, по которым компания Crystal Stone выполнила все необходимые расчеты и чертежи и изготовила эту композицию из натурального камня, сохранив природный рисунок кварцита». При выборе стиля будущего интерьера дизайнеры отталкивались от эстетических и практических пожеланий заказчиков, ведь в первую очередь новый интерьер должен радовать хозяев квартиры и отражать их вкус. Пространство получилось просторным, изящным и, главное, актуальным на многие годы. Поэтому входной холл можно считать визитной карточкой всего интерьера. Он демонстрирует архитектурный объем помещения и акцентирует внимание на декоративности, присущей всему интерьеру. «Мы убеждены, что ничто не может быть столь важно, как первое впечатление, — говорит Александра. — Так как самым главным эстетическим качеством становился вид на парк, очень хотелось показать эту изюминку при входе. Поэтому в холле специально размещены большие зеркальные панно, отражающие панорамный вид из окна». Все зеркальные панно в квартире были выполнены на заказ компанией Decora Glass. Разработка зон хранения была отдельной увлекательной частью работы. Хозяева тщательно продумали, где будет храниться каждый предмет, что упрощало работу проектировщиков, но не делало менее увлекательной. Был продуман каждый сантиметр пространства, спроектированы встроенные шкафы в жилых комнатах. Особый шарм интерьерам придают индивидуальные предметы мебели, изготовленные компанией Artwoodline.
Общая площадь 175 м2

Авторы проекта архитекторы Александра Казаковцева, Мария Махонина
(архитектурная студия MK-Interio, г. Санкт-Петербург)
