На берегу Невы, 129 м2
Эта квартира для семьи москвичей, которая любит Санкт-Петербург и часто приезжает сюда отдохнуть, проникнуться атмосферой. И интерьер — с тонким петербургским настроением

У жилого комплекса Royal Park есть прямой выход к набережной Невы и к собственной пристани. До дома можно добраться на лодке, и это привлекло внимание заказчиков, задумавших купить квартиру в Санкт-Петербурге. «Близость воды подчеркивает в данном случае особый стиль города на Неве, диктует определенный образ жизни, — объясняет автор проекта Елена Лебедева. — Хозяева приезжают сюда проникнуться культурным духом Северной столицы, напитаться магической атмосферой, отдохнуть душой. Но в то же время нельзя сказать, что квартира имеет характер «выходного дня» как это задумывалось изначально, хозяева проводят здесь довольно много времени, им нравится сюда приезжать. Поэтому хотелось создать спокойный деликатный интерьер, приятный для жизни».
По стилю это современная классика: элементы классического стиля присутствуют, но не доминируют. Тема подана очень тонко, через лепные молдинги с уголками и нежный фриз, стилизованный в духе необарокко. Современные мебель и освещение эффектно контрастируют с классическим лепным декором.














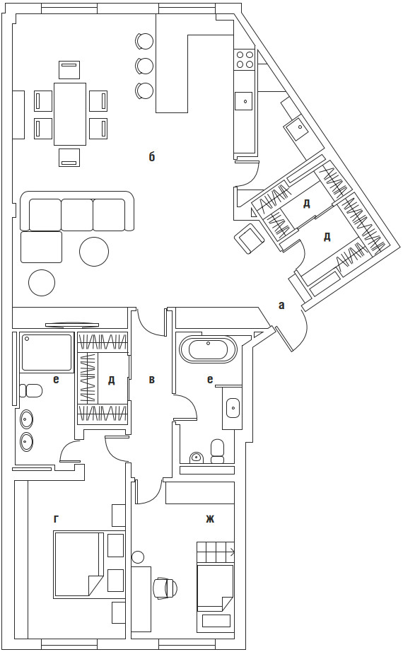
При создании новой планировки заказчики попросили уйти от угловатых и ломаных линий, которые присутствовали в квартире. Им хотелось видеть геометрически правильное пространство без углов и изломов. Поэтому Елена Лебедева основные зоны квартиры — и общественную, и приватную — выровняла. Вспомогательные помещения — гардеробную, постирочную, коридор — она разместила в оставшейся «угловатой» части. Теперь эта неправильность не доминирует. Заодно дизайнер убрала бесполезный огромный коридор. Таким образом, пространство стало визуально комфортным, функциональным, эргономичным. У этой квартиры есть интересная особенность: войдя сюда, ощущаешь, что находишься в студии, поскольку взгляду открывается только просторная кухня-гостиная и гардеробная. А на самом деле через потайные двери гостиной можно попасть в зону спален. «Так задумано: объект раскрывается не сразу, — объясняет Елена. — Он имеет продолжение, но недоступное для посторонних. Я люблю так проектировать. Когда есть зоны для гостей, а есть частное пространство, где хозяева могут отдыхать уединенно». В интерьере много натуральных материалов: камень, дерево, гипс, ткани натурального состава и ручного плетения. Гамму выбрали природную: оттенки оливкового, терракотового, бежевого. Стены декорировали краской Mons в сложных пастельных оттенках: так, в гостиной ее тональность бежево-серая с оливковым оттенком. Она прекрасно сочетается с общим тоном слэба из натурального камня, на котором укреплена ТВ-панель. Дизайнер и заказчица выбирали этот материал с уникальным природным рисунком вместе. «У нас сложилось настоящее сотрудничество, — говорит дизайнер. — Всего, что мы решали совместно, не перечислить, расскажу лишь об одном моменте, характеризующем насмотренность и вкус хозяйки. Я предложила ей на выбор две центральные люстры: одну в классическом стиле, вторую — в современном. Заказчица предпочла классической люстре необычное эклектичное решение от Bezhko, поскольку такое смелое решение пришлось ей по душе, и к тому же сложился еще один важный момент: это местный производитель. Столь значимый в пространстве объект несет определенную символику, акцентирует «питерскую» атмосферу этого интерьера».
Общая площадь 129 м2

Фото: Иван Сорокин. Стилист: Анна Крутолевич. Автор проекта дизайнер Елена Лебедева, студия Plan A (www.planaspb.ru). Комплектация (мебель, свет, электрофурнитура, сантехника из Италии) компания Laboratory Dome (www.lab-dome.com). Поставка ковров компания kover.ru (www.kover.ru). Поставка паркета компания «Еврохоум» (www.eurohome.pro). Поставка люстры компания Bezhko (www.bezhko.com). Производство корпусной мебели компания KOZA HOME (www.koza-home.ru). Текстильные изделия бутик ORO (www.oropremium.ru). Поставка краски компания «Студия-А1» (www.monspaint.ru). Поставка дивана Natuzzi компания Ocania Group (www.ocania.ru).