Московская вилла
Дизайнеры Анна Сахарова и Светлана Глазкова создали интерьер трёхуровневой квартиры в духе спокойной, интеллигентной классики

Трёхэтажная квартира, а точнее урбан–вилла, как её позиционирует застройщик, находится в новом жилом комплексе Cameo в центре Москвы. Комплекс построен в определённой стилистике, которая оказала влияние на интерьер. Например, светлый оттенок фасада и огромные панорамные окна здания нашли своё отражение в роскошных витражных межкомнатных дверях.
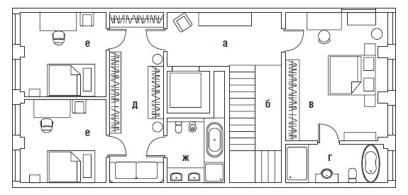
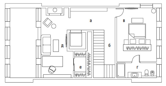
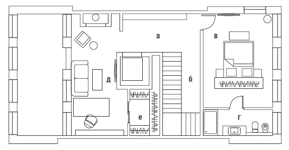
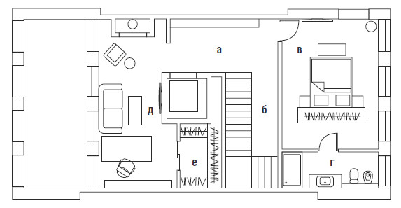
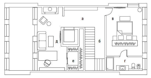
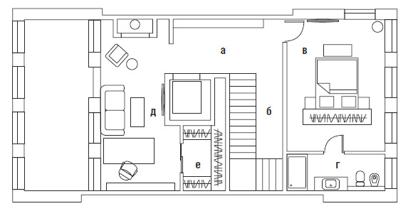
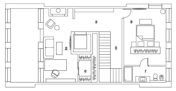
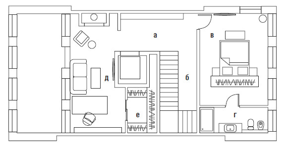
«Планировку мы создавали с нуля, — говорит Анна Сахарова. — На вилле изначально было лишь несколько несущих стен, лифт, лестница и коммуникации. По просьбе заказчиков мы поменяли форму лестничных холлов, скорректировали пространство под лестницей для последующего размещения здесь зоны кухни». Но не только архитектура квартиры, весь дизайн, включая текстильное убранство спален, досконально продуман авторами проекта.
Заказчики — семейная пара с двумя детьми, большие ценители искусства и антикварных вещей, люди консервативных взглядов. Они очень бережно и даже трепетно относятся к истории, особенно к истории своей семьи, поэтому в доме много памятных предметов и дорогого сердцу декора, в том числе старинная мебель и аксессуары таких брендов, как Lalique и Baccarat. Часть антикварной мебели владельцы квартиры перевезли сюда из своего старого дома; «вокруг неё» построено стилевое и колористическое решение интерьера. «Мы бы охарактеризовали данный стиль как неоклассику, — рассказывает один из авторов проекта Светлана Глазкова. — Заказчикам не нужен был модный, остроактуальный интерьер, им нужна была нейтральная, мягкая, немного театральная классика, которую мы и реализовали».








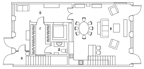
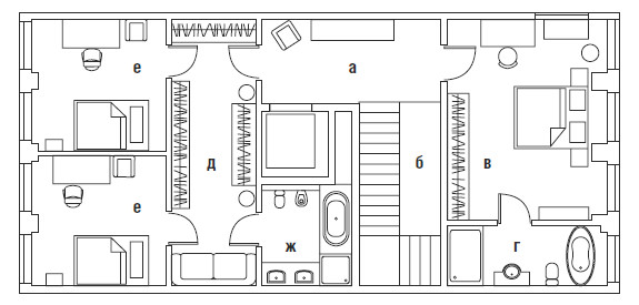
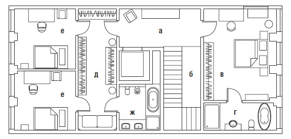
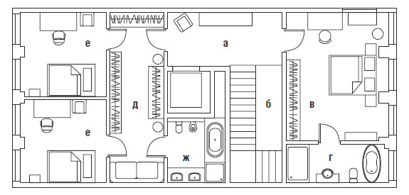
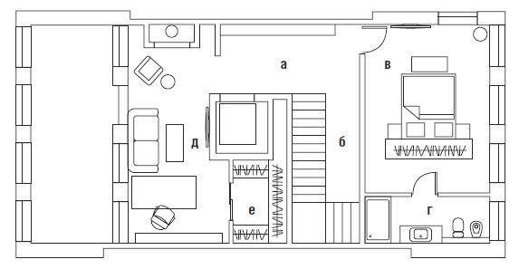
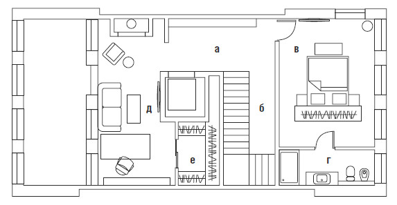
Очень важно было учесть жизненные сценарии членов семьи — шумные детские активности и серьёзные мужские заботы. Вот почему дизайнеры спроектировали отдельный блок с женской и детскими спальнями на втором уровне, а на третьем — отдельный мужской этаж со спальней и кабинетом. При этом на первом этаже организовано открытое пространство гостиной и кухни–столовой для дружного совместного времяпрепровождения.
Ещё одной планировочной задачей было создать просторную входную зону, которая задаёт настроение всему интерьеру. Одна из особенностей виллы — наличие этажа, в который выходит подземный паркинг. Путь в паркинг отгорожен от входного холла красивой витражной конструкцией от пола до потолка. В этой же зоне разместили отдельную функциональную гардеробную с панорамным окном.
Ключевая особенность пространства — изготовленная по эскизам дизайнеров лестница с тонким кованым ограждением и ступенями из натурального мрамора, которая является главным украшением дома. Эта своего рода ось, на которую нанизан интерьер. Редкая для московской квартиры вещь — настоящий дровяной камин (его разместили в кабинете). Натуральные материалы — дерево, камень, текстиль — поддерживают атмосферу уюта.







В интерьере нет точечного и технического освещения: весь свет в доме декоративный, таково было пожелание заказчиков. Именно этим продиктовано обилие люстр и бра в интерьере, и локальный свет создаёт в квартире подчёркнуто комфортную, камерную, обволакивающую атмосферу.
Общая площадь 320м2



Авторы проекта дизайнеры Анна Сахарова, Светлана Глазкова (дизайн–бюро BELLARDO, г. Москва). Поставка сантехники компания «Интерьер Маркет». Поставка ковров ручной работы компания Kulturakovrov. Текстиль для декорирования кроватей, дизайн и производство BELLARDO. Текстиль для ванных комнат компания Lovehome. Поставка мебели для детских комнат фабрика мебели Mamka. Декор для ванных комнат компания Ouvet
