Море вокруг
Каким должен быть интерьер на морском побережье? Несомненно, лёгким, освежающим, пропитанным прохладой, таким, как в этом сочинском пентхаусе

Автор проекта Мария Губина: «Морская тематика интерьера была предопределена. Дом, в котором находится квартира, расположен на самом берегу моря. Бесконечная панорама водной глади — её главная достопримечательность. Цветовую гамму мы определили как пляжную, в ход пошли оттенки бежевого, жёлтого, светло– коричневого, голубого, синего, зелёного. Морскую тематику поддерживают также отделка и предметы интерьера».


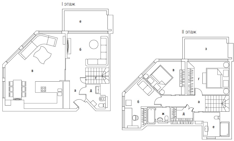
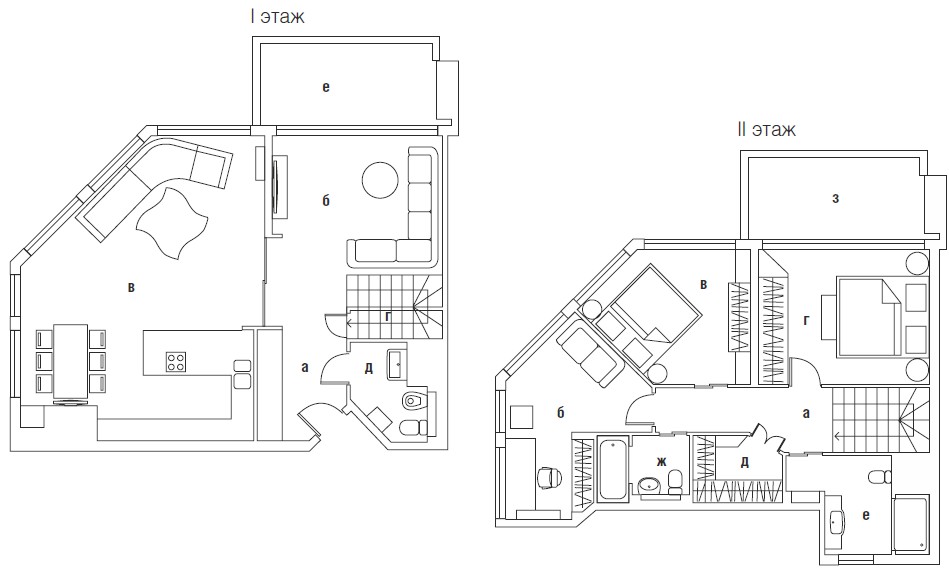
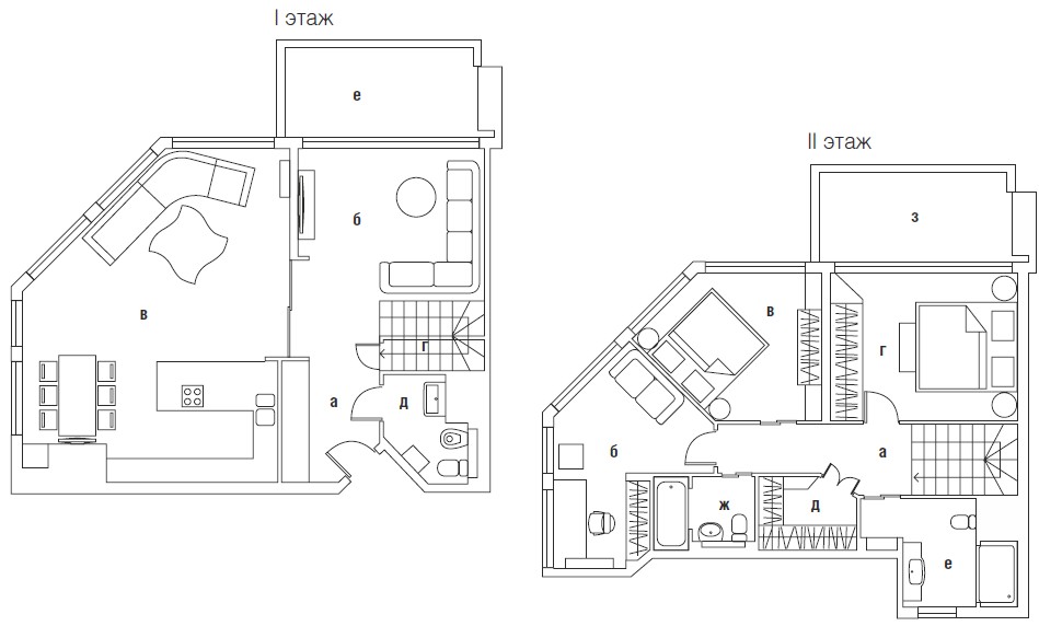
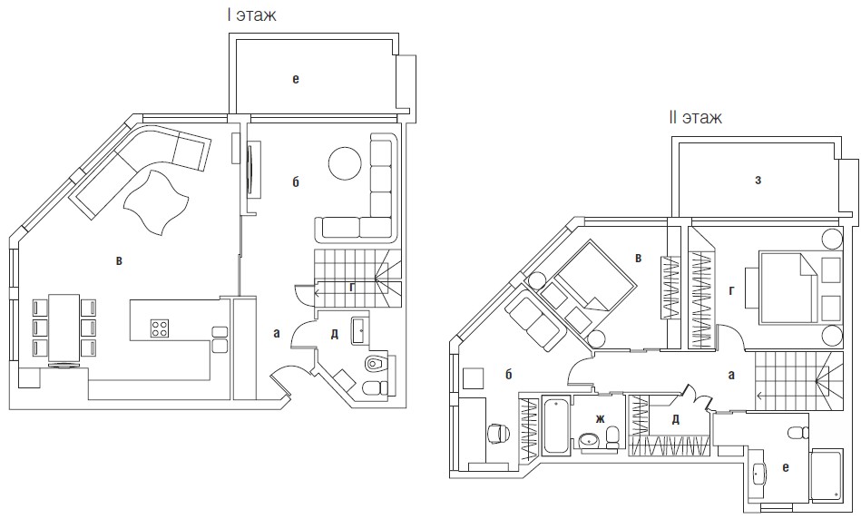
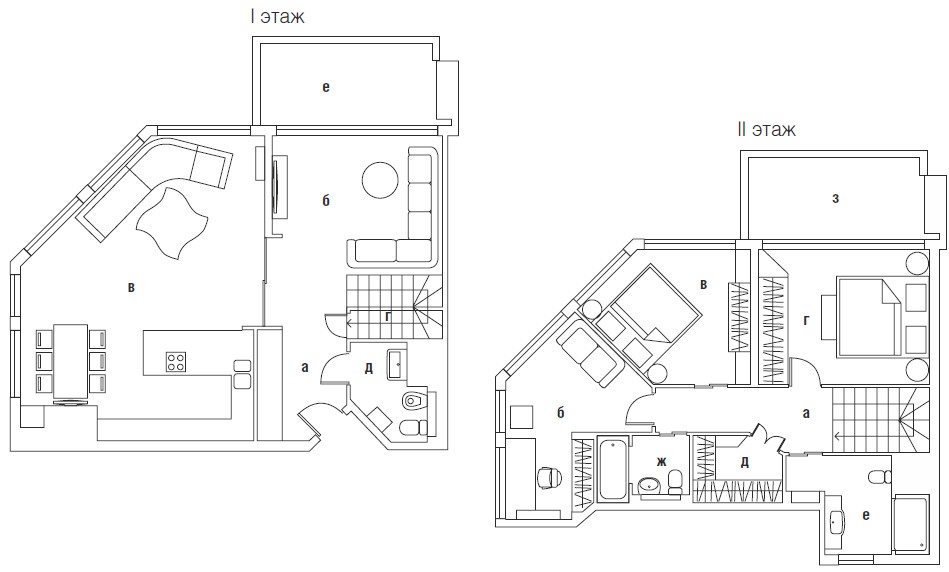
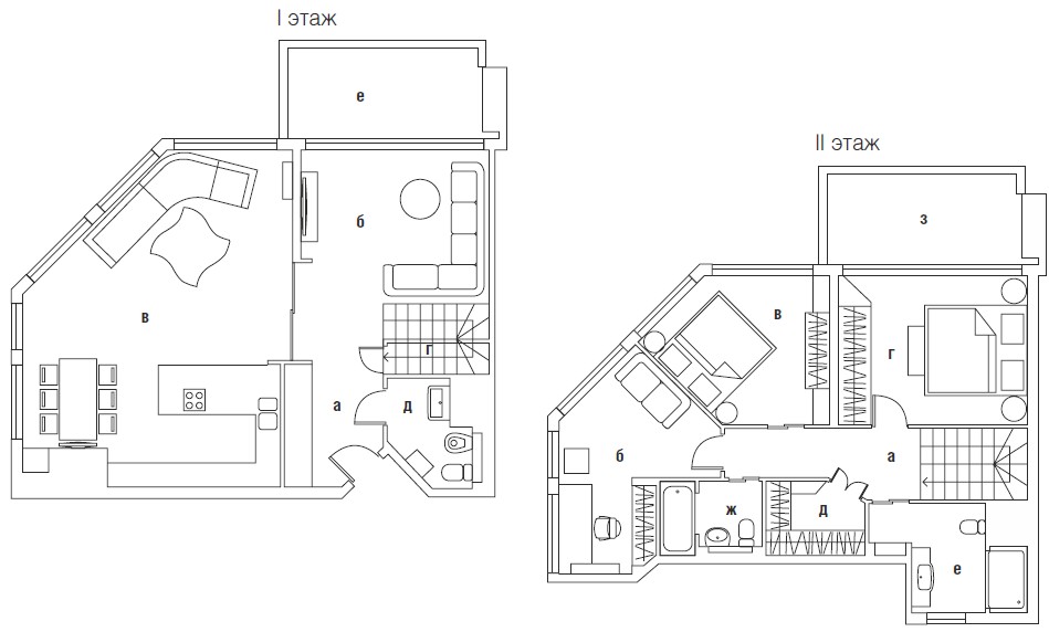
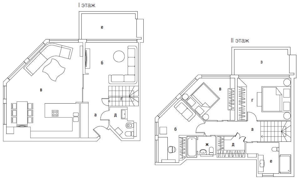
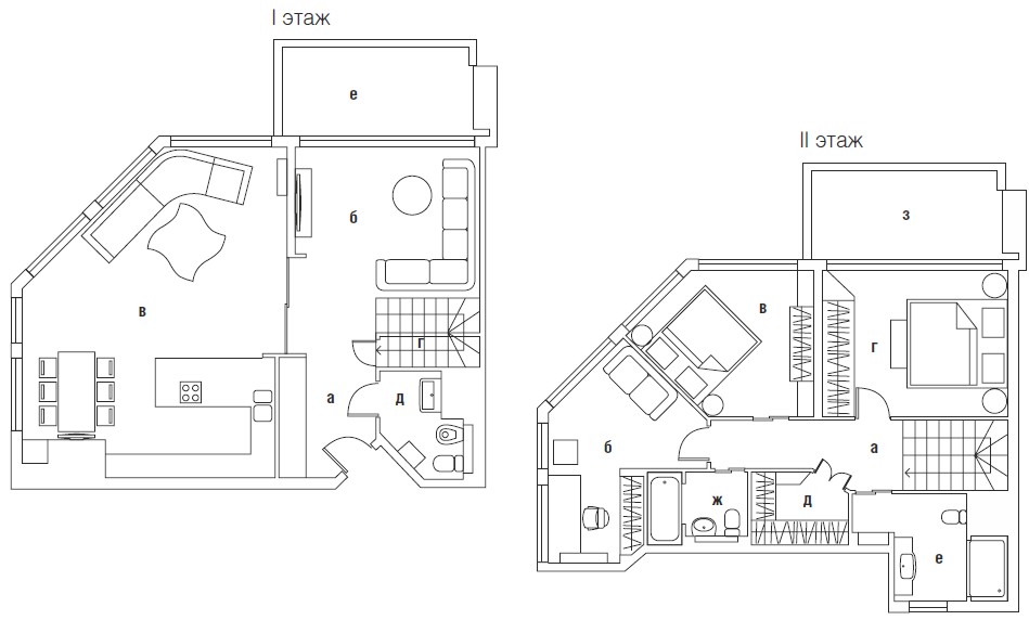
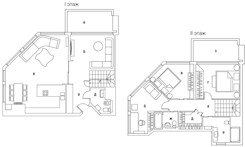
Заказчики обратились к дизайнеру после покупки двухуровневого пентхауса на черноморском побережье. Им нужны были не только определённый набор помещений и вместительных систем хранения, но и ощущение простора и воздуха, чтобы по квартире было легко и комфортно передвигаться, а обстановка не отвлекала от пейзажа за окном. «С заказчиками я не раз работала и знала, что они не терпят вычурности, обилия золота, показной роскоши, — рассказывает Мария Губина. — Стиль интерьера они выбирают, исходя из контекста: месторасположения, архитектуры здания, конфигурации помещений, высоты потолков. С имевшимися исходными данными мне было сложно представить себе квартиру в классическом стиле. Поэтому никаких сомнений не было, что интерьер будет исключительно современным». Поскольку работа проходила удалённо, сначала Мария изучила фотографии квартиры и исходную планировку. «Маленькие окна на плане меня не на шутку испугали, они больше походили на бойницы, — вспоминает дизайнер. — Но когда я увидела объект вживую, то отметила, что мозг не считывает их как отдельные маленькие окошки, а
