Линия энергии
Полина Афонская создала минималистичный и запоминающийся интерьер квартиры для молодой семьи с двумя детьми

Просторную квартиру в новом жилом комплексе на Петровском острове Санкт-Петербурга команда архитектора Полины Афонской оформляла для молодой семьи. Хозяева хотели превратить исходные 140 м2 в стильное и функциональное пространство для комфортной городской жизни с детьми. «Для нас в UD STUDIO каждый проект — это отражение уникальности клиента через интерьер и индивидуальный подход. Здесь нам хотелось не просто сделать акцент на функциональности и удобстве, но и использовать яркие дизайнерские приемы, чтобы отразить творческий характер заказчиков», — рассказывает Полина.








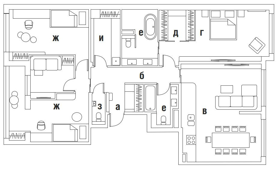
Площадь квартиры распределили между тремя основными блоками: единой зоной кухни-гостиной и столовой, блоком родителей и двумя детскими. Для парадной части квартиры выбрали открытое, светлое пространство, лаконичный дизайн которого должен был подчеркнуть масштаб и простор. Но авторы проекта столкнулись с конструктивными особенностями дома. «Буквально посередине комнаты расположен достаточно большой простенок, который нужно было визуально растворить в интерьере. Для этого мы использовали один из наших любимых приемов — масштабные, эффектные зеркала. Мы очень любим визуальные иллюзии, которые помогают расширять пространство, зрительно поднимать потолки или, как в этом случае, могут скорректировать несовершенство несущих конструкций», — отмечает Полина. В итоге простенок изящно подчеркивает функциональное деление на диванную группу с ТВ-панелью и камином и зону парадной столовой. Зрительно же сделать потолки выше помогла комбинация еще нескольких любимых командой приемов. Например, стык пола и стен декорировали плинтусом теневого профиля, стены и потолок тонировали в один цвет, а вместо потолочного карниза использовали мягкий скругленный переход от поверхности стен. «Результат этого проекта во многом сложился благодаря нашей командной работе со строителями. Нам нужно было идеальное исполнение всего задуманного, ведь только так в минималистичном пространстве можно достичь ощущения чистоты и благородства. Филигранно выполненные переходы, узлы соединения разных фактур, скругленные по форме углы — все вместе эти детали отвечают за финальное впечатление от квартиры», — говорит Полина.








Единство пространства проявляется через перекличку деталей. Например, форму полукруга имеют и светильник над столом в зоне гостиной-столовой, и конструкции двухуровневых кроватей в обеих детских комнатах, и углы портала, ведущего из гостиной во входную зону. Входной холл — своеобразная буферная зона, которая задала тон другим помещениям в квартире. Здесь гостей встречает высокое зеркало, которое смело можно назвать одним из лейтмотивов проекта. В гостиной зеркало скрадывает особенности несущих конструкций, в спальне — зрительно расширяет и облегчает пространство в сдержанной монохромной гамме, а в ванной комнате при спальне хозяев придает отделке из микроцемента и натурального камня торжественность и лоск. В итоге это сочетание четких линий и спокойных оттенков складывается в идеальное, выверенное и свободное пространство. Настроение и яркий характер же ему придают чутко подобранный авторский декор. «Один из любимых приемов нашей студии — гипсовые светильники, которые благодаря своему рукотворному характеру привносят в пространство энергию, своеобразный «хаос», тем самым делают интерьер живым и радостным», — отмечает Полина.
Общая площадь 140 м2

Автор проекта архитектор Полина Афонская (студия дизайна интерьеров UD STUDIO, г. Санкт-Петербург)
