Минималистская база и немного ориентального стиля в сочетании с европейским фьюжен — таков рецепт современного интерьера для любителя искусства от дизайнера Александра Кононенко
Текст: Анна Гемиш. Фото: Сергей Красюк. Стилист: Ольга Васюкова
Гостиная сразу встречает смелыми цветами, напоминающими о Марокко, и миксом стилей. Тёмно–синий диван MOSS от Pavel Vetrov Studio отлично дополняют ярк–рыжие акценты — как, например, подушки Filimonova Textile по мотивам картины Аси Феоктистовой. Журнальный стол, люстра, Timothy Oulton salon
При первом взгляде кажется, что на фотографиях — комбинированная съёмка: так необычно смотрятся смелые, порой ироничные предметы искусства в минималистском интерьере. И дизайнер Александр Кононенко сделал это неспроста. Квартира находится в современном ЖК «Воробьёв Дом» с собственным парком и выходом на набережную Москвы–реки. Локация и архитектура здания стали определяющими в выборе базового — минималистского — стиля, но им дизайнер не ограничился. «В первую очередь, я хороший психолог, ведь моя главная задача ещё на стадии проектирования выявить тонкие моменты жизни будущих хозяев, чтобы они сразу чувствовали свой дом и получали удовольствие от жизни в нём», — отмечает он. Александр уже оформлял для заказчика другие объекты в самых разных стилях, а в этой городской даче было решено сделать лаконичный фон для самых необычных, порой хулиганских артефактов.
Заказчик — современный холостяк средних лет, он ведёт светский образ жизни, часто бывает за границей, посещает вернисажи и знает толк в современном искусстве. Поэтому декор в интерьере — это не просто бессмысленный набор предметов, а своего рода коллекция воспоминаний об определённых моментах его жизни. Первоначальная площадь объекта составляла 95 кв. м, но высокий потолок 4,7 метра позволил дизайнеру сделать второй уровень и практически удвоить полезное пространство. «При этом я предложил сохранить в центральной части высоту, чтобы наполнить квартиру воздухом. Такой эффект второго света изначально задал пространству динамику, он подчёркивает высоту окон и делает центр дома более парадным и эффектным», — объясняет Александр.
Автор проекта дизайнер Александр Кононенко
Реечные декоративные панели из шпона натурального дерева изготовлены на заказ на столярном производстве. Над ТВ–зоной дизайнер установил фальшь–окна в виде зеркал в рамах, подчёркивающих геометрию потолка и создающих эффект второго света. Между ними — картина Джексона Поллока. Ковёр, Art de Vivre
Из гостиной можно выйти на собственную террасу площадью 17 кв. м. Пару кресел Tuttu Monteor от Levantin Design в кофейном цвете дополняют приставные банкетки Anni House. В простенке между окнами висит монохромная картина от самой молодой художницы Испании — Кристины Отеро
Тему восточной сказки продолжает обеденная группа в зоне столовой — двуцветные стулья Katana Pavel Vetrov Studio и стол Anni House с декором от Я&R Décor. Подчёркнуто минималистская лестница со стеклянным ограждением, спроектированная автором проекта, имеет проходную подсветку каждой ступени
Кухня оборудована в нише под лестницей, и естественный свет попадает в эту зону из столовой, поэтому здесь предусмотрены точечные светильники Aledo. Кухонная мебель с фасадами в мягком цвете мокко и столешницей из кварца изготовлен на индивидуальном производстве. В шкафах под островом предусмотрен винный шкаф
Акцентная синяя плита La Cornue как символ роскоши как бы намекает на то, что хозяин может приготовить званый ужин. Вытяжка, Teka. Встраиваемая техника, Miele
Спальня расположена на втором уровне. Естественный свет поступает сюда через небольшое окно с первого этажа, в которое также вмонтирован конвектор отопления для комфортного проживания и обогрева комнаты в зимнее время. Стены окрашены декоративной краской H&H фабрики Topcoat Boutique, в тот же цвет покрашены и плинтусы — этот приём призван подчеркнуть визуальную границу с полом и сохранить баланс. Кровать, R&S désirée. Стеллаж, Minotti. Торшер, Flos Guns Lounge Gun Gold by Philippe Starck. Приставной столик Porto R, Pavel Vetrov Studio
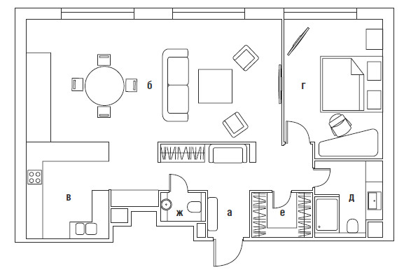
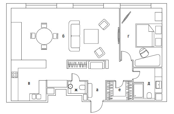
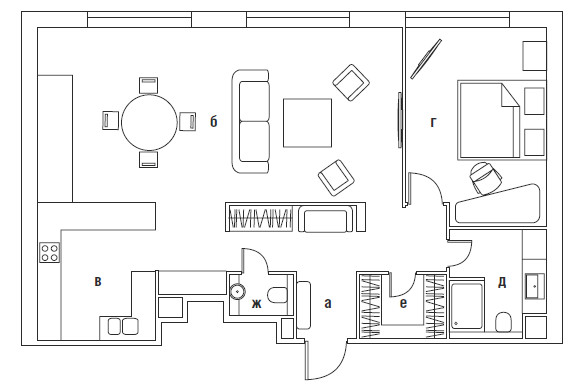
Планировка получилась очень функциональной, эргономичной и практичной и позволила учесть все пожелания заказчика. Среди основных — гостевая спальня для друзей, отдельная комната для обуви и максимальное количество зон для хранения: шкаф для повседневной одежды, скрытая постирочная и место под хозяйственный инвентарь на первом этаже и три большие гардеробные комнаты.
В интерьере проскальзывает воспоминание о путешествии в Марокко. «Заказчику настолько понравилось сочетание природных красок, что акценты мы решили добавлять именно в этой экзотической палитре.
Пески Марокко в оранжево-терракотовых деталях и васильковое небо в обивке мебели соединяются на фоне мягкого песчано– бежевого фона», — рассказывает Александр. В отделке он также обращается к натуральным материалам, таким как дерево, камень, лён. Немаловажную роль в проекте играет освещение. Это встраиваемые трекерные системы, различные диодные подсветки и главный акцент второго света — люстра–шар над столовой зоной. Лаконичные бра в вечернее время настраивают на покой и тишину. Несмотря на современность интерьера, от системы «умный дом» заказчик отказался, оставив лишь системы управления текстилем на окнах и электрическими рулонными шторами.
Холл второго этажа, расположенный на антресоли, вмещает в себя библиотеку с собственной системой трекерной подсветки Bright Buro. У лестничного пролёта представлено трио картин авторства Андрея Богуша, а доминантой галереи стала работа Керри Джеймс Маршал (Kerry James Marshall) с девушкой в стиле аниме. Стеллажи — Minotti, декор — IzziDecor и Я&RDecor
Хозяйская спальня имеет отдельный выход на террасу. Она выполнена в нейтральной природной цветовой гамме с акцентом на кровати Desiree model Ludwig design (Roberto Gobbo) в цвете лазури и картине Николая Кошелева. Прикроватная тумбочка, Timothy Oulton. Ковёр, Art de Vivre
Не только отдельный декор, но и целые зоны порой представляют собой произведение искусства. Экстравагантное рабочее место в спальне первого уровня организовано за счёт брутальных стола и кресла в духе стимпанка от Timothy Oulton. Завершает образ картина Ralph Lauren Interior с лошадью
Уже в прихожей можно увидеть увертюру ко всему интерьеру — гостей встречает яркий диванчик Daze (Anni House) с цветными подушками и в пару к нему абстрактная работа художника Николая Кошелева. В остальном, в этой зоне — минимальный набор мебели и лаконичный шкаф с зеркальными фасадами, который расширяет коридор и превращает его в галерею
Ванная при спальне на втором уровне отделана керамогранитом в кофейной гамме, напоминающей горные пейзажи. Вся сантехника — Laufen. В зеркале отражается работа голландского фотографа Корнелии Толленс (Cornelie Tollens)
Санузел при спальне на первом этаже выдержан в той же спокойной натуральной палитре. Душевое ограждение изготовлено на заказ. Сантехника, смесители, Laufen. В каждом санузле есть небольшие пеналы для хранения полотенец и средств ухода