Идеальный дом
Дизайнеры из студии AX INTERIORS создали в просторной московской квартире ощущение загородного дома

Дизайнеры Алия Хальфетдинова, основатель студии AX INTERIORS, и Оксана Ольховская оформили просторную квартиру в премиальном комплексе RedSide в Москве. Владельцы квартиры — успешные, открытые, публичные люди с тонким вкусом Константин и Мария Федановы. Константин владеет большим бизнесом, является ведущим российским производителем профессиональной и бытовой химии. Он уверен, что наши специалисты могут делать классный продукт наравне с зарубежными, поэтому практически вся мебель в интерьере выполнена российскими производителями. В частности, мягкая мебель (диван, кровати) выполнена на заказ волгоградской студией авторской мебели MALINA, а корпусная мебель — «фабрикой Воробьевых». «Еще в самом начале работы заказчики четко знали, какой результат хотят увидеть в итоге, — рассказывает Алия. — Основным пожеланием была современная классика с элементами шика. Поэтому в интерьере мы использовали такие классические виды отделки, как натуральный паркет, мрамор calacatta, шпон американского ореха, лепнину.
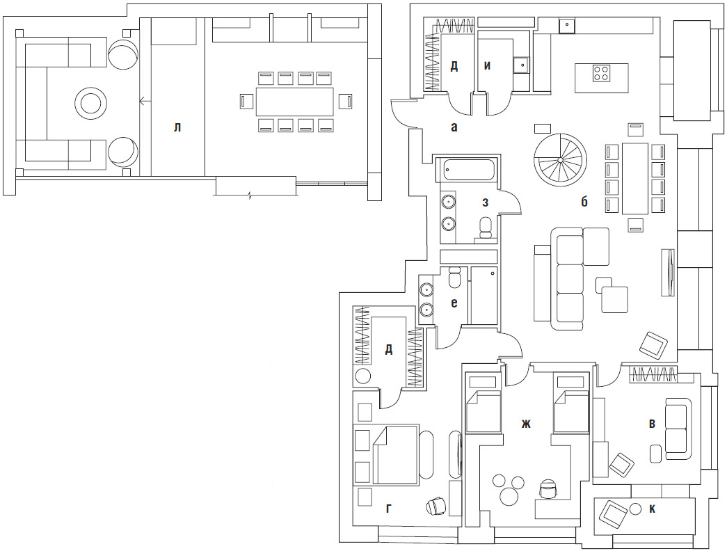
Квартира имеет необычную планировку. Есть две открытые террасы — 50 и 20 кв. м, которые сразу покорили авторов проекта. Они дарят ощущение проживания в загородном доме, где в любое время можно выйти на свежий воздух. «После пандемии у многих заказчиков появился запрос на место, где они могут уединиться и отдохнуть, не покидая свой дом.


















Конечно же, терраса стала сердцем дома. Чтобы можно было проводить время на террасе не только летом, но и в холодное время года, была создана закрытая часть с утеплением. Много сил было вложено на реализацию из-за сложности согласования. Самым сложным и ответственным моментом был правильный расчет уклона кровли и мощности температур». В оформлении террасы дизайнеры отошли от современной классики в пользу стиля эко. Пол выполнен из керамогранита под камень. В отделке использованы соломка и черный металл. Освещение — французские плетеные светильники.
Выделяющимися также можно назвать потолки высотой 6,5 метра. «Это ощущение высоты, легкости и простора мы старались сохранить и пронести через весь проект. Чтобы сохранить объем помещения, мы отказались от идеи изоляции кухни от общего пространства. Межкомнатные двери сделали высокими, до потолка, с эффектной отделкой из шпона», — отмечает Алия. В качестве дерзкого современного акцента прямо по центру гостиной расположили винтовую лестницу со стеклянным ограждением. «Лестница в этом интерьере не просто функциональный элемент, связывающий два этажа, а своего рода арт-объект, современная скульптура. Мы долго высчитывали диаметр, чтобы лестница была удобной и остался нормальный проход на кухню», — дополняют авторы проекта.
Одной из главных тенденций на сегодняшний день является близость к природе. В интерьере использованы натуральные материалы, много шпона, мрамора, природные, спокойные цвета. В мебели и текстиле были применены ткани с бархатистой фактурой, тактильные, приятные на ощупь. Придать современному стилю элементы роскоши получилось с помощью гипсовых молдингов, латунных вставок и декоративных элементов, присущих классическому стилю.
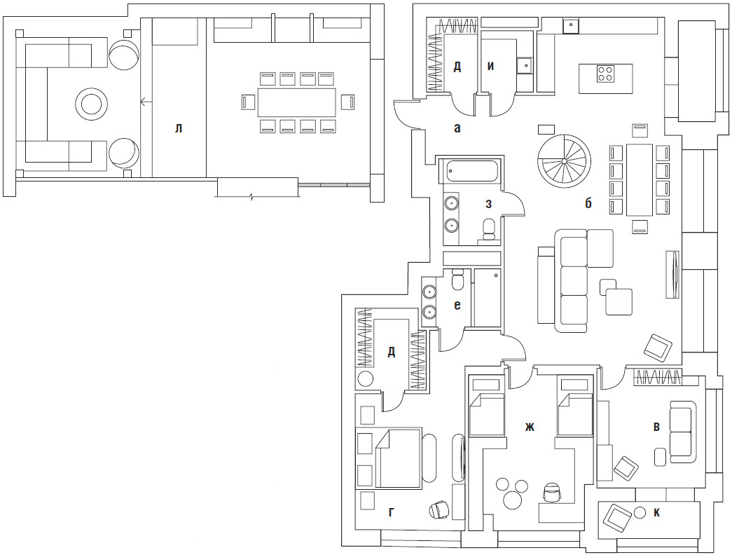
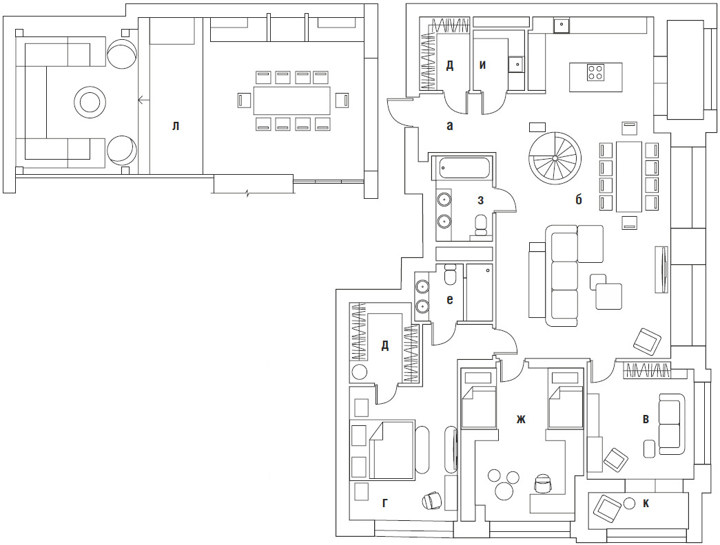
Общая площадь 200 м2

Авторы проекта дизайнеры Алия Хальфетдинова, Оксана Ольховская (студия дизайна AX INTERIORS, г. Москва)
Строительство под руководством
Александра Рудковского (компания «Амедиа Строй»)
