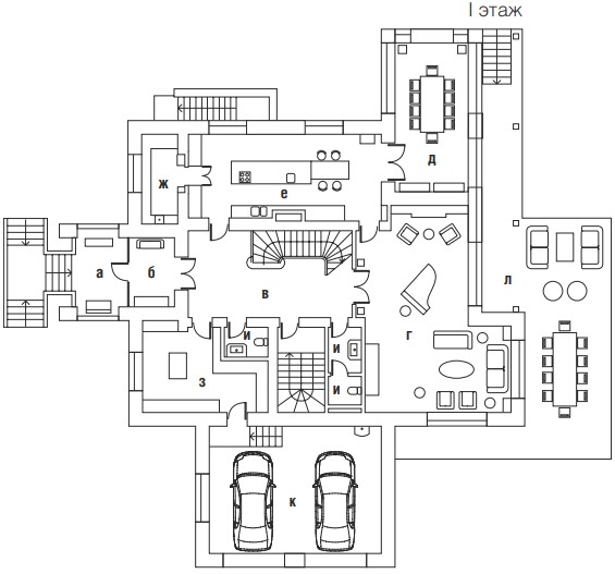
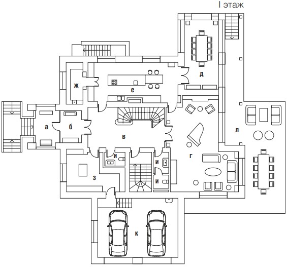
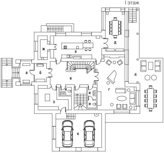
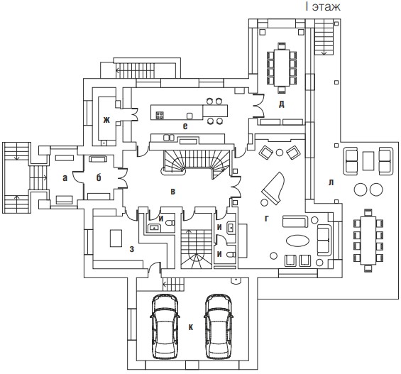
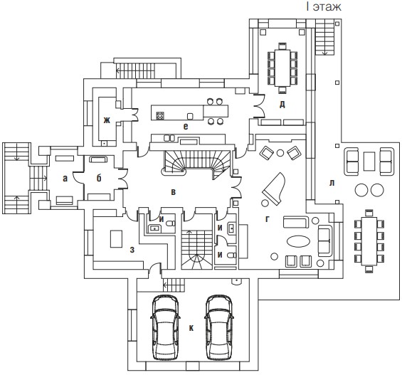
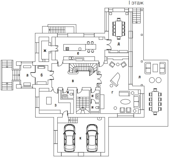
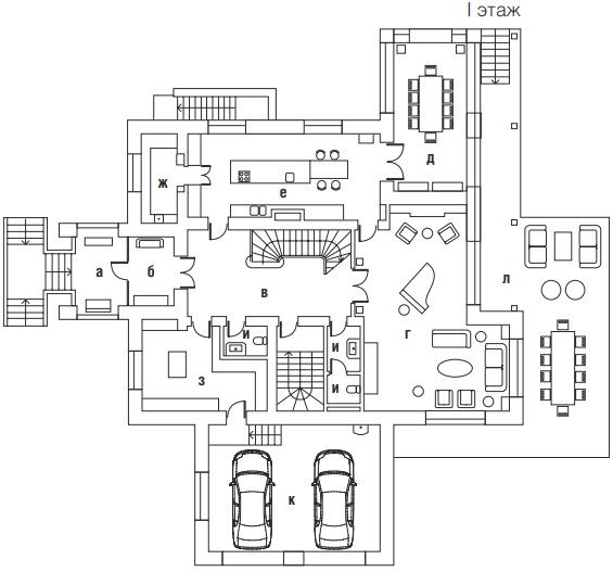
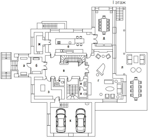
Эпоха просвещения
Архитекторы из бюро Lighthouse оформили дом для поклонников американской классики по всем законам жанра и в то же время с чувством юмора

Дмитрий Хорошев: «Интерьер — это не просто набор понравившихся предметов, это среда обитания, в которой хозяевам должно быть комфортно. И очень важно сохранить баланс, найти тонкую грань между классикой и современностью, сиюминутными предпочтениями и модными тенденциями, чтобы интерес и свежесть восприятия сохранялись как можно дольше, а интерьер не устаревал морально долгие годы. Поэтому мы стараемся выстраивать его по принципу контраста, разбавляя классический интерьер ультрасовременными предметами и наоборот»



Архитекторы Дмитрий и Татьяна Хорошевы, выпускники МАРХИ, в профессии более двадцати лет. За время работы создали множество частных и общественных интерьеров. Поэтому неудивительно, что заказчики им доверяют и часто приходят по рекомендации друзей и знакомых. Этот проект не стал исключением. Владелец обратился к архитекторам после того, как побывал в гостях у своего друга. Ему очень понравился интерьер, стилистика, качество исполнения — всё это оставило приятные ощущения, а неудачный опыт общения с другими архитекторами ещё больше укрепил заказчика в своём выборе.

