Белый дом
Эта загородная резиденция находится в курортном районе Одессы на самом берегу моря. Владельцы построили её для отдыха в кругу семьи и друзей

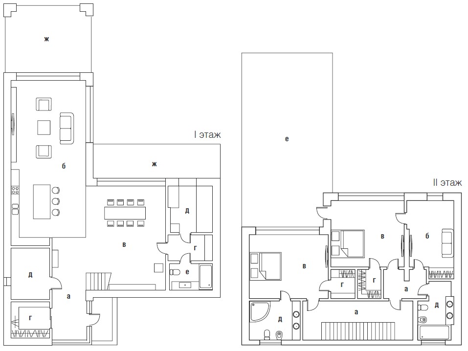
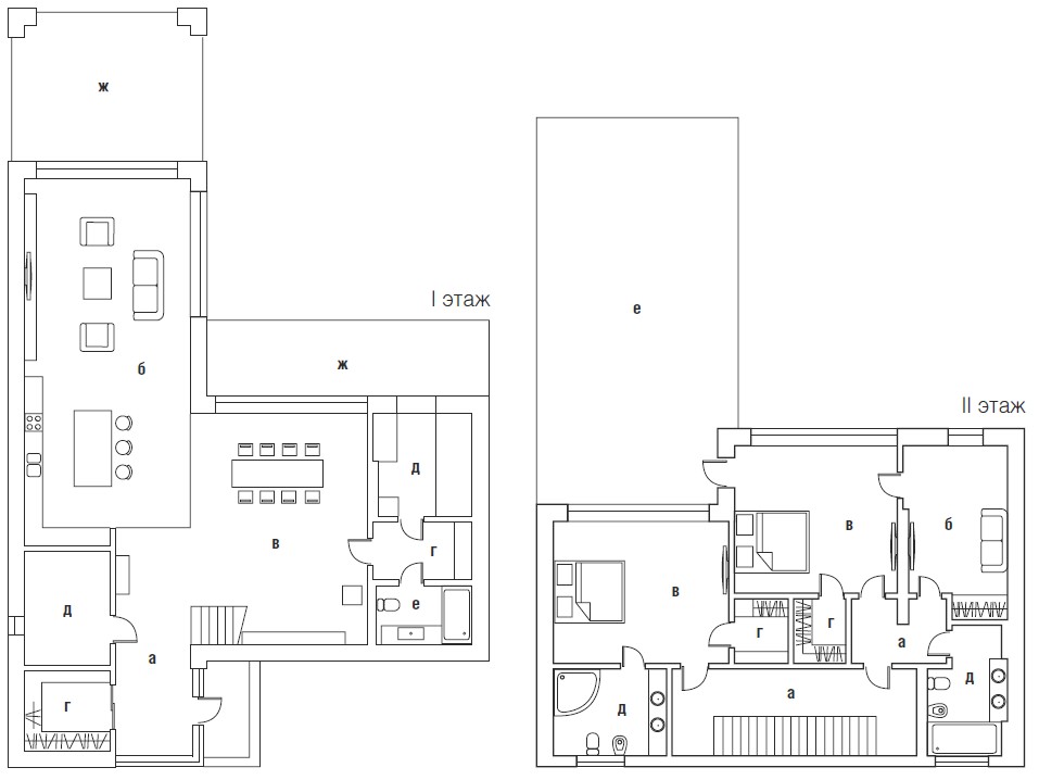
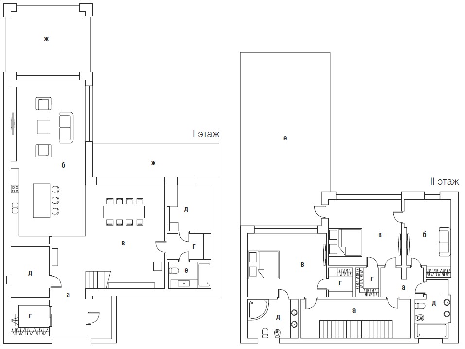
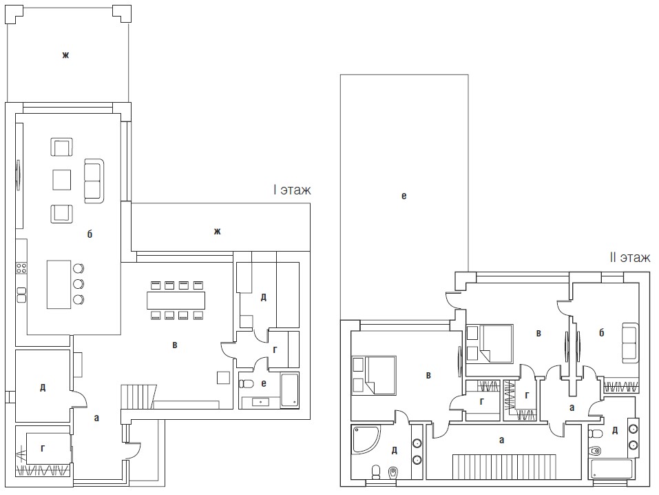
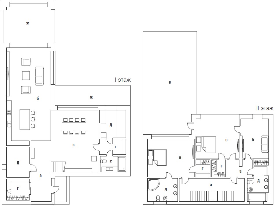
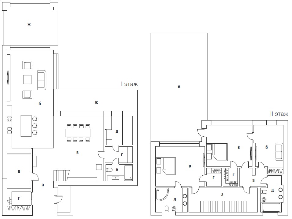
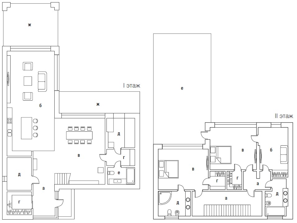
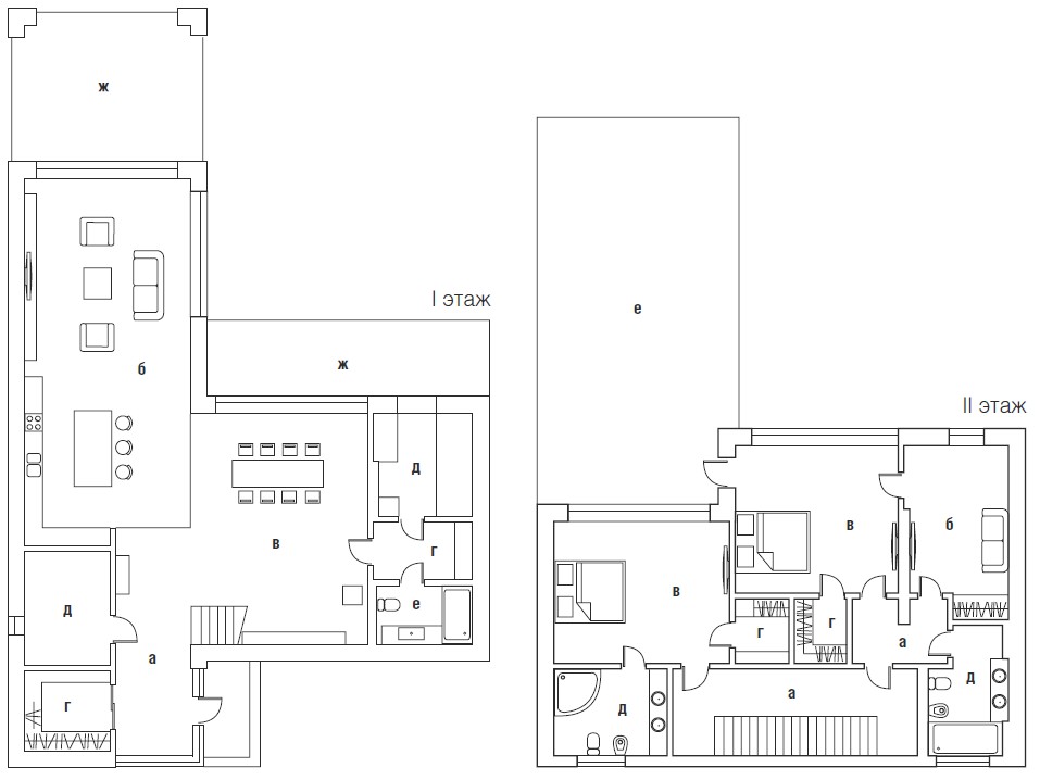
Илья Темнов: «Ключевым фактором для разработки интерьера и экстерьера резиденции было желание хозяев создать максимально открытое, но приватное пространство, состоящее из двух отдельных симметричных объёмов. Чтобы решить эту проблему в черте города, мы поставили корпуса рядом, максимально близко друг к другу, а за счёт Г-образной формы каждого из них появился внутренний двор, закрытый с трёх сторон»


Аркадия — главный курортный район Одессы, расположенный на берегу Чёрного моря, известный своими многочисленными ресторанами, ночными клубами и дискотеками. Его по праву считают клубным центром страны. Здесь также много пансионатов, санаториев и пятизвёздочных гостиниц. С недавних пор в районе ведётся активная застройка, каждый год здесь появляются частные резиденции. Об одной из них и пойдёт речь. После покупки участка владельцы пригласили к разработке проекта команду молодых, но успешных и амбициозных архитекторов из одесского бюро M3Architecture. Заказчиком и идейным вдохновителем выступил глава семьи. Он подробно описал свои пожелания: стилевое направление — минимализм, белый цвет, контрастные сочетания, предельная функциональность, уют и комфорт без лишних деталей, отсутствие какой-либо растительности в доме. Существенно облегчило работу то, что,
