Отрывок из книги «Коммуналка на Петроградке» Анастасии Вепревой и Романа Осминкина

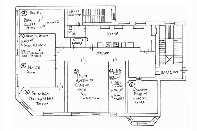
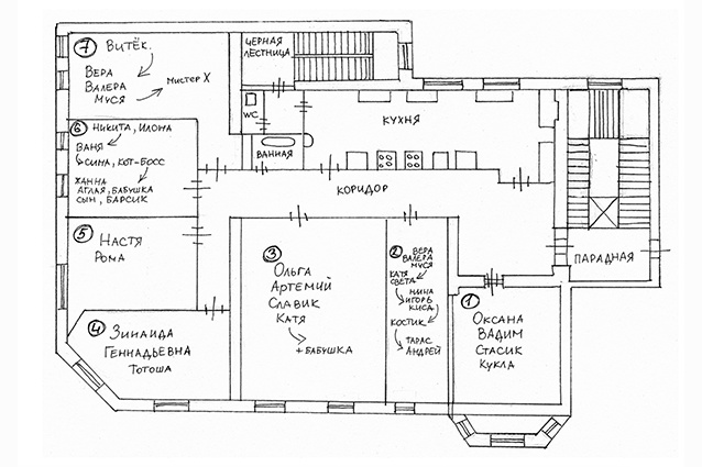
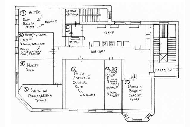
Художница Анастасия Вепрева и поэт Роман Осимкин поселились в коммунальной квартире в центре Петербурга и происходящее там стали описывать в Facebook (соцсеть признана в РФ экстремистской и запрещена). Впервые «Коммуналка на Петроградке» была представлена в виде пьесы fringe-программы фестиваля молодой драматургии «Любимовка-2019». В 2021 году из пьесы и записей родилась книга, написанная в смешанном жанре, — это одновременно личный дневник, публичный блог, художественная проза, документальный театр и этнографическое исследование. «Сноб» публикует отрывок из текста, выходящего в начале февраля в издательстве «Новое литературное обозрение».
2016
Январь
1 января 2016
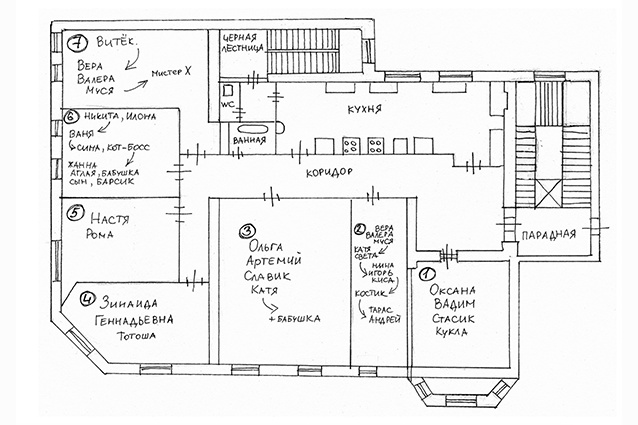
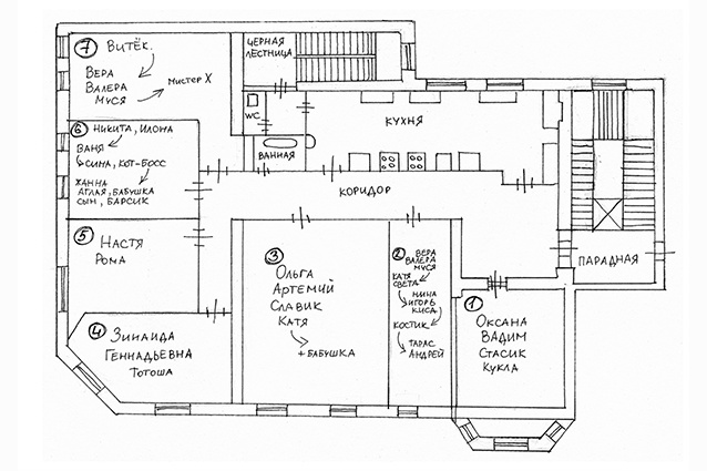
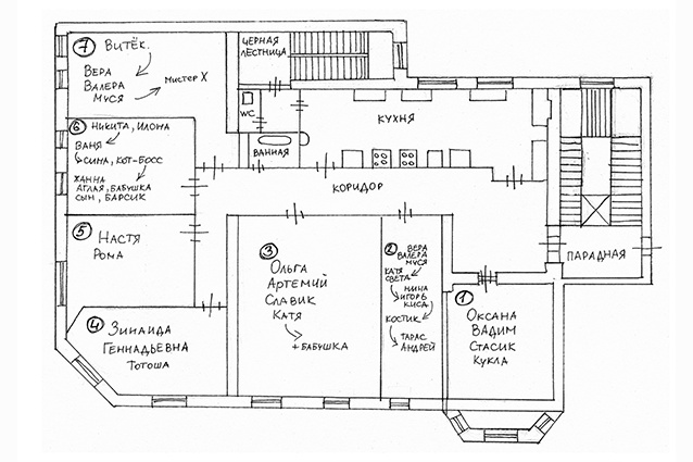
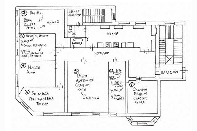
Мы, Анастасия Вепрева и Роман Сергеевич Осминкин, открываем дневниковые записи в жанре включенного наблюдения за одной коммунальной квартирой на Петроградской стороне. Что из этого выйдет, мы сами пока не очень представляем. Присоединяйтесь к чтению этого документа, предоставляемого нам самой жизнью!
Эти грибы выросли у нас в комнате между паркетин в новогоднее «прекрасное» утро, став последним знаком о необходимости начала ведения наших коммунальных очерков.
1 января.
Осминкин пишет:
Поздним утром у одного из наших соседей — Витька — началось что-то похожее на белую горячку. Я заслышал женские визги и вышел в коридор. Там я разнимал драку Витька и другого соседа, Вадима. Почти нежно я просил не устраивать поножовщины в первый же день нового года (как будто бы ее можно было бы отсрочить на несколько дней). Витек вращал безумными глазами, как шарнирами. Метафора избитая, но единственно верная в данном случае, так как я почти слышал скрип его шарообразных белковых телец внутри глазниц — они были расширены и немигающе устремлены во все стороны и в никуда одновременно. Тучный и короткий Вадим был зол и пыхтел, грозясь зарыть Витька в землю заживо. Маленькая круглая Оксана, его жена, жизнерадостная сибирячка-повариха, пританцовывала рядом, умоляюще прося Вадима успокоиться, а меня помочь разнять дерущихся. Я спросил у Оксаны и Вадима, не стоит ли вызвать скорую психиатрическую помощь, ведь если у Витька действительно белая горячка, то перспектива жить бок о бок с человеком, могущим в любой момент уснуть с сигаретой в кровати, или забыть газ выключить, или наброситься ни с того ни с сего с ножом, не оставляла мое болезненное воображение. Ответом было снисходительное: «Витек у нас дрессированный, не боись…» В итоге для жителей коммуналки все на этот раз закончилось благополучно. Витек остался со своей «белочкой» наедине — были слышны только его лихорадочные передвижения в комнате и нечленораздельные вопли, которые ближе к ночи стихли.

2 января.
Вепрева пишет:
Разбудили ранним утром, в 12 часов, колотили в дверь и вопили: «Открывай, ****, открывай, тварь». Вроде не в нашу. Представила картину, что Виктор, наш сосед-алкоголик, заснул в ванной и утоп, а другие хотят ее принять и нервничают из-за грядущей уборки.
2 января.
Осминкин пишет:
После вчерашнего происшествия с Витьком Вадим сидел и курил на кухне. Рядом его женщины — мама и Оксана — нахваливали, какой Вадимчик молодец, что припугнул этого Витю. Вадим для еще большей значимости отвечал, что он бы его вообще убил, если бы их не разняли. А разнял их я и поэтому не избежал заочной похвалы от Оксаны, что она будет знать, что если ее будут убивать в этой квартире, то найдется хоть один человек, который не допустит этого, — сосед Роман.
