Зона комфорта
Правильно спланированные, функциональные помещения создают образ комфортного и гостеприимного дома. В ярком пространстве царит вдохновляющая атмосфера и присутствует лёгкий флёр французских булочек и свежесваренного кофе

Молодая хозяйка квартиры желала видеть интерьер ярким, интересным, но не способным быстро наскучить, хотела, чтобы в новой квартире было комфортно жить, уделять время хобби и принимать гостей.
В квартире с открытой планировкой репрезентативной зоны и несколькими изолированными комнатами становится теплее и комфортнее за счёт природной цветовой гаммы, предметов из натурального дерева и текстильных аксессуаров
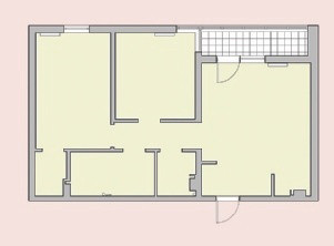
Перепланировка. Перед авторами проекта не ставилась задача что-то ломать и перестраивать, поэтому они сохранили простоту и ясность пространства и изменили лишь входную зону. Одну перегородку передвинули, чтобы увеличить объём встроенного шкафа. Вторую, между кухней и прихожей, убрали совсем. Теперь её функции выполняют стенка кухонной стойки и несколько деревянных реек. В большом санузле по желанию хозяйки установили и ванну, и душ. Стояк водных коммуникаций находится в центре длинной стены, из-за чего возникли определённые технические сложности, которые удалось преодолеть. Маленький санузел отвели под хозяйственную комнату: там разместили стиральную машину и сушку для белья. Проблему хранения большого количества вещей решили с помощью гардеробной, отгороженной от спальни стеной с дверью.
Ремонт. Проект реализован в сжатые сроки — всего за 4 мес. Несмотря на ограниченный бюджет, в отделке использовали только качественные материалы. Для подшивного потолка — листы гипсокартона и каркас из металлического профиля толщиной 0,55 мм. Чтобы выровнять основание пола, применили быструю технологию сборной сухой стяжки на плитной основе. Пол в прихожей, кухне, ванной и хозяйственной комнате для простоты уборки выложили керамогранитом. Большую часть стен оклеили прочными на разрыв и сдерживающими появление микротрещин основания флизелиновыми обоями.








Дизайн. Стиль интерьера смешанный. В нём есть что-то от сканди: обилие света, светлые оттенки, текстура дерева, мебель характерных форм, а что-то от кантри: обеденный стол, текстиль и декор. Большое внимание уделено колористике. Стены кухни-гостиной выкрашены в светло-серый оттенок. На таком фоне эффектно смотрятся декор и светильники. В небольшой спальне сочетаются обои контрастных цветов: тёплого серого и бордового (в изголовье кровати и на противоположной стене), благодаря чему появляется ощущение глубины и простора. Белоснежную облицовку санузла оживляют графитовый шкаф и деревянные элементы. Важную роль в создании атмосферы играют обивка мебели, живописные работы хозяйки квартиры и колоритные сувениры из путешествий.
Рассказывают авторы проекта
Дизайнеры Денис Рыжков, Надежда Яркова
Наибольшие сложности при реализации проекта вызвала организация удобного доступа к коммуникациям в санузлах и кухне. Мы сделали его скрытым от глаз. В большом санузле установили невидимые люки, а трубы водоснабжения закрыли шкафом. Добраться до них несложно — достаточно открыть створки. В кухне подход к стояку спрятали в небольшом углублении на фартуке. Также заказчица захотела иметь возможность «трансформировать» интерьер под настроение, но без глобальных переделок. В такой ситуации самое простое решение — смена текстиля. Именно поэтому в качестве основного колористического акцента мы выбрали текстильные аксессуары. В гостиной, спальне и гостевой комнате появились яркие шторы, подушки, ковры и коврики. Обратите внимание на картину, которая висит на стене объединённой кухни-гостиной. Она нарисована хозяйкой, которую вдохновил новый интерьер.
Свет и цвет
Светильники соответствуют назначению и дизайну помещений. При входе, над зеркалом — чёрно-золотой геометрический плафон. Арт-объект сразу указывает на необычную стилистику интерьера. Над обеденным столом — пять простых стеклянных подвесов, которые контрастируют с яркими фасадами и кухонным фартуком, однако не спорят с ними. Возле дивана в гостиной — высокое бра для чтения. Небольшие чёрные светильники на стенах коридора особенно эффектны вечером, в полумраке. В спальне, над мольбертом — оригинальные разноцветные подвесы с лампочками малой яркости. Удобна подсветка полочек и зеркала в санузле. За общее освещение квартиры отвечают встроенные в потолок светильники. Их цветовая температура 3000 К, то есть чуть ниже, чем у ламп накаливания. Это оптимальный выбор для квартиры, где преобладает тёплая колористическая палитра.
***
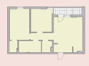
План до ремонта
Технические данные
до ремонта:
- общая площадь — 70,6 м2
- высота потолков — 3 м
после ремонта:
- общая площадь — 70,6 м2
- высота потолков — 2,9 м
Весь объект
- Потолки: гипсокартон КНАУФ, краска Dulux
- Пол: ламинат Pergo
- Встроенные светильники: Crystal Lux
- Двери: фабрика Estet
План после ремонта

Кухня-гостиная — 20,8 м2
- Пол, фартук: керамогранит Coliseumgres
- Пол: ламинат Pergo
- Стены: обои Milassa
- Мебель: столярная мастерская (на заказ), ИКЕА
- Светильники: подвесы Kink Light, бра Arte Lamp
Хозяйственная комната — 2,7 м2
Прихожая — 3,8 м2
- Пол: керамогранит Coliseumgres
- Подвес: Eglo
- Мебель: столярная мастерская (на заказ)
Ванная — 6,3 м2
- Пол: керамогранит MEI
- Стены: керамогранит MEI, краска Dulux
- Сантехника: инсталляция VitrA, унитаз Aquanet, ванна Alcaplast, душевой поддон RGW, душевое ограждение GuteWetter, раковина Melana
Гардеробная — 2,2 м2
Спальня — 14,7 м2
- Пол: ламинат Pergo
- Стены: обои Milassa
- Светильники: бра Nowodvorski, подвесы Eglo
- Мебель: ИКЕА
- Кровать: столярная мастерская (на заказ)
Гостевая — 11,8 м2
- Пол: ламинат Pergo
- Стены: обои Marburg
- Светильники: люстры Eglo
- Мебель: ИКЕА
Коридор — 4 м2
Балкон — 4,3 м2
Экспресс-подбор
Основа интерьера, в котором комбинируются элементы эстетики сканди и кантри, — практичные материалы отделки с натуральной фактурой, деревянная мебель, а ещё множество текстильных изделий и предметов декора.


Фото: Estima Ceramica (3), ИКЕА, KARE Design (2), Cosmo, H&M Home (2), Denpasar, Zara Home, Eva Solo, AM.PM, La Redoute Intérieurs