Скандинавская романтика
В интерьере этой квартиры, оформленной в скандинавском стиле, предпочтение было отдано натуральным цветам и материалам. В кухне, например, за счёт того, что вся мебель сделана на заказ, удалось использовать каждый сантиметр пространства и выделить достаточно мест для хранения, а также организовать зону отдыха на низком подоконнике

Основные пожелания владельцев двухкомнатной квартиры сводились к обустройству двух спален (для хозяйки и её дочеришкольницы), полноценной кухни со столом на четверых, организации мест хранения для большого количества одежды и обуви. Кроме того, заказчице требовалось место для хобби — рисования (мольберта, подрамников, кистей и красок).
Живописный вид, который открывается из лоджии, служит хозяйке источником вдохновения. Также утеплённое летнее помещение является отличной зоной для релаксации
Перепланировка. Чтобы входная зона производила впечатление цельного современного пространства, дизайнер убрала дверь и простенок при входе в кухню. Плита в кухне электрическая, поэтому объединение не нарушало нормы Жилищного кодекса РФ. Вход в первую комнату из коридора (детскую) перенесли. В результате в коридоре образовался угол для установки полноценного шкафа (для верхней одежды) с большой антресолью (для чемоданов) и полками (для сумок, перчаток и шарфов). Там же, в шкафу, спрятали электрический щиток.









Ремонт. Квартира, относящаяся к старому жилому фонду, давно дожидалась ремонта. Он стал основательным, заново залили даже стяжку пола. Внутриквартирные перегородки в этой серии домов II-6801(II-68-01/16Ю-2/78) сделаны из гипсобетона, их трогать не стали. Поверхность стен вывели под покраску. Небольшая высота потолка — всего 2,5 м — вынуждала к оштукатуриванию и покраске, что и было сделано в жилых помещениях, а вот в нежилых из-за необходимости размещения встроенного освещения её уменьшили на 10 см. Но из-за малого метража данных объёмов это не так и заметно. Окна и радиаторы находились в отличном состоянии, поэтому их оставили. Не меняли (по желанию заказчика) также трассы и, соответственно, расположение внутренних блоков кондиционеров. Лоджию, в которой хозяйка пишет картины, утеплили и дополнили тёплым электрическим полом, а на случай очень холодной зимы ещё и настенным электрическим конвектором. Сделали дополнительные розетки.
Дизайн. Автор проекта обратила внимание, что старая московская квартира окнами выходит на живописный пруд, где зимой дети катаются на коньках, а летом плавают утки, другими словами, открывающийся вид несколько напоминает пейзажи Северной Европы. По этой причине при разработке концепции оформления она взяла за основу скандинавский стиль, который дополнила морскими нотками. Заказчице, деловой женщине с хорошим вкусом, понравилась и сама идея, и её реализация. Мебель использована природных оттенков, светлых тонов, чтобы подчеркнуть отсылку к скандинавским интерьерам.
Чтобы в спальне хозяйки поместилось как можно больше шкафов, обошлись без тумбочки; кровать выдвинули на 20 см и за изголовьем сделали полку для аксессуаров, а также розетки для зарядки гаджетов
Рассказывает автор проекта
Дизайнер Мария Рожкова
За основу во всех помещениях мы взяли светлый цвет стен, «стокгольмский» белый, и добавили оттенки синего и голубого в текстиль, декор и мебель. В ванной комнате, для которой хозяйка заранее приобрела светлую плитку, часть стен сверху, 20-сантиметровый «кант», покрасили в серо-синий цвет специальной влагостойкой краской. Таким образом, все помещения в квартире объединены общим стилем и одной задумкой. Потолочного света в квартире совсем немного. В спальне и детской ограничились люстрами-артишоками из латуни, которые везли из Америки. Настенные светильники заказывали из Швеции. Они очень эргономичные, на длинных регулируемых ножках, что позволяет менять их местоположение при чтении или убирать к стене, чтобы не мешались. Именно такой свет любят в скандинавских странах. В этом проекте всё сложилось идеально, потому что и высота потолков не позволила бы нам сделать встроенное освещение.
Чуть-чуть Бали
Заказчица охотно согласилась на предложение дизайнера добавить в концепцию оформления лоджии «чуть-чуть Бали» и повесить кресло из натурального ротанга. Поиски подходящего экземпляра заняли настолько много времени, что в определённый момент, путешествуя по Бали, дизайнер даже собралась подобрать нужное изделие прямо на месте и привезти его в Россию. Однако совершенно случайно идеальная модель всё же отыскалась в одном из мебельных магазинов столицы. Кресло анкерным болтом закрепили на оптимальном уровне. Потолок оформили деревянными рейками, а между ними заподлицо встроили профильные светильники, тем самым поддержав тематический дизайн. Прохладный оттенок голубого выбран для стен лоджии неслучайно — окна выходят на солнечную сторону.
***
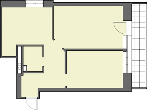
План до ремонта

Технические данные
до ремонта:
- общая площадь — 55 м2
- высота потолков — 2,5 м
после ремонта:
- общая площадь — 55 м2
- высота потолков — 2,4-2,5 м
Весь объект
- Стены: краска: Little Greene, плитка Equipe, Kerama Marazzi
- Полы: инженерная доска Barlinek, керамическая плитка Adex, Kerama Marazzi
- Лепнина: пенополиуретановый плинтус Orac Decor
- Двери: входная Torex, межкомнатные Porta Prima
- Электроустановочные изделия: Werkel
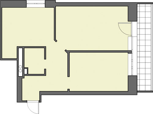
План после ремонта

Кухня — 11 м2
- Стены: краска: Little Greene, кухонный фартук — керамическая плитка Equipe
- Полы: инженерная доска Barlinek, керамическая плитка Adex
- Мебель: кухонный гарнитур «Манакор», смеситель Blanco, стол и стулья — BoConcept, стеллаж ИКЕА
- Техника: духовой шкаф, варочная панель, холодильник, вытяжка, посудомоечная машина — Kuppersberg, стиральная машина Midea, ТВ Samsung
- Освещение: Visual comfort Gallery
- Аксессуары: текстиль Decortier, посуда Villeroy & Boch
Спальня — 17 м2
- Стены: краска Little Greene
- Полы: инженерная доска Barlinek
- Мебель: кровать, зеркало — Dantone Home, кресло ИКЕА
- Освещение: BoConcept, House Doctor, Visual comfort Gallery
- Аксессуары: текстиль ИКЕА, Decortier, Jysk, Togas, Zara Home, ковёр кover.ru
- Оборудование: телевизор Samsung, биокамин ZeFire
Лоджия — 5 м2
- Стены: краска Little Greene
- Полы: керамическая плитка Kerama Marazzi
- Мебель: корпусная мебель — на заказ по чертежам дизайнера (Tit & Froll), кресло Imodern, встроенная мебель Tit & Froll
- Аксессуары: текстиль ИКЕА, Decortier, Zara Home
Ванная — 2 м2
- Стены: влагостойкая краска Little Greene, керамическая плитка Kerama Marazzi ПОЛЫ: керамическая плитка Kerama Marazzi
- Сантехника: унитаз VitrА, шкаф и раковина — Roca, ванна Cersanit, смесители Hansgrohe
- Водонагреватель: Timberk
Прихожая — 8 м2
- Стены: краска: Little Greene
- Полы: инженерная доска Barlinek, керамическая плитка Kerama Marazzi МЕБЕЛЬ: на заказ, по чертежам дизайнера — Tit & Froll
- Освещение: Dantone Home, swetodiod.ru
Детская — 12 м2
- Стены: краска Little Greene
- Полы: инженерная доска Barlinek
- Мебель: корпусная мебель — на заказ по чертежам дизайнера (Tit & Froll), диван Dantone Home, зеркало ИКЕА
- Аксессуары: рамки Zara Home, ковёр кover.ru
- Освещение: BoConcept, House Doctor, Visual comfort Gallery
Экспресс-подбор
Данью скандинавской эстетике стали неброские натуральные оттенки, природные или имитирующие таковые материалы и узнаваемые элементы дизайна


Дизайнер: Мария Рожкова Фото: Евгений Гнесин, Marset, ИКЕА, Zara Home (2), H&M Home, The IDEA, Quick-Step (2), La Redoute Intérieurs, House Doctor
