Как в воду глядеть…
Одна из первостепенных задач, стоящих перед дизайнером этой небольшой по площади двухкомнатной квартиры, — максимально сориентировать структуру интерьера в сторону живописной набережной Москвы-реки, вид на которую открывается из большинства окон

Лёгкие на подъём молодые супруги, занятые в сфере продаж и проводящие свободное время в путешествиях по миру, планировали вдохнуть жизнь в старую квартиру в кирпичном доме 1961 г. постройки, расположенного на Дербенёвской набережной. Для общительной пары требовалось организовать единое пространство кухни-гостиной-столовой, но при перепланировке пришлось учитывать, что зона готовки газифицирована и её нельзя объединять с остальными помещениями. А вот для организации спальни, в которой энергичные заказчики не планировали проводить много времени, можно было обойтись минимумом квадратных метров. Среди особых пожеланий — оборудовать места для хранения, не задействуя при этом площадь балкона, который изначально решили полностью остеклить, чтобы тем самым включить в жилище живописные виды на реку.
Перепланировка. Внутри квартиры не было несущих перегородок, что позволило полностью переиграть пространство и дать ему абсолютно новое прочтение. Дверной проём, ведущий в кухню, переместили на соседнюю стену и заменили распашное полотно на раздвижную двупольную дверь-невидимку. Таким образом, при открытой двери получили эффект объединённой территории. Санузлы совместили и увеличили их общую площадь за счёт части входной зоны. Один квадратный метр коридора отошёл под создание ниши-кармана для встроенной колонки со стиральной и сушильной машинами.








Количество встроенных источников света рассчитано, исходя из площади комнат и необходимого нормативного освещения. Дополняют их скрытая диодная подсветка и бра
Ремонт. При демонтаже перегородок выяснилось, что пол и потолок имеют серьёзный уклон, так что в ходе строительных работ пришлось выравнивать не только стены, но и горизонт перекрытий. Новые перегородки возвели из пазогребневых блоков, а пенал для раздвижных дверей соорудили из гипсокартона. В качестве финишной отделки пола в зоне кухни, прихожей, балкона и санузлов выступает керамическая плитка, а в гостиной и спальне — инженерная доска. Стояки водоснабжения переварили, для удобства сместив их в ванной комнате с середины стены к её краю, а газовый кран спрятали внутрь шкафчика под кухонной столешницей. Место старых чугунных радиаторов заняли биметаллические, окрашенные в цвет стен. Все окна в квартире менять не стали, лишь после согласованного удаления подоконного блока для организации просторного выхода на балкон установили сдвижные остеклённые двери. Летнее помещение полностью остеклили, но утеплять не стали, оставив пропускающим естественный свет.
Дизайн. Выбор всех отделочных материалов обусловлен стилем интерьера — смесью современного и скандинавского направлений. За первую составляющую отвечают стены под покраску, ровные потолки со встроенным светом, обилие дерева или его имитация (фреска в гостиной), за вторую — лаконичная мебель на ножках и геометрические мотивы.
Примечательны детали из чёрного металла, призванные подчеркнуть скандинавский характер интерьера, — каркас полок над диваном, обрамление зеркал, фурнитура комодов
Рассказывает автор проекта
Дизайнер Наталия Андрианова
В начале работы заказчики показали мне интерьер, который им очень приглянулся. Мы его внимательно рассмотрели, обсудили, и в результате родился внешний облик их квартиры. В этом проекте были и максимальное взаимопонимание, и душевное созвучие с хозяевами, и плодотворная работа со строительной бригадой. Пожалуй, самым сложным стало вдохновить рабочих на укладку плитки в ванной комнате, так как раскладка сложная, требует аккуратности и стальных нервов.
Из-за уклона плиты перекрытия пришлось пересмотреть высотность потолков. Мы постарались использовать гипсокартон минимально (потолки и так невысокие — 2,6 м), отступ рассчитывали, исходя из технических данных встроенных светильников. Например, над кроватью в спальне вмонтированы профили для светодиодной ленты в виде лучей, и величина снижения потолка напрямую зависела от размера этих элементов. Часть потолков просто оштукатурили.
***
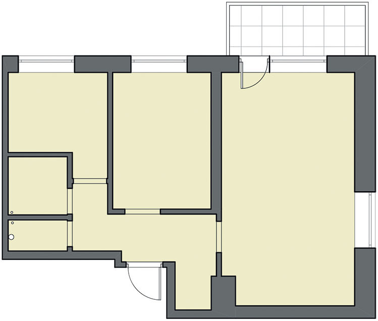
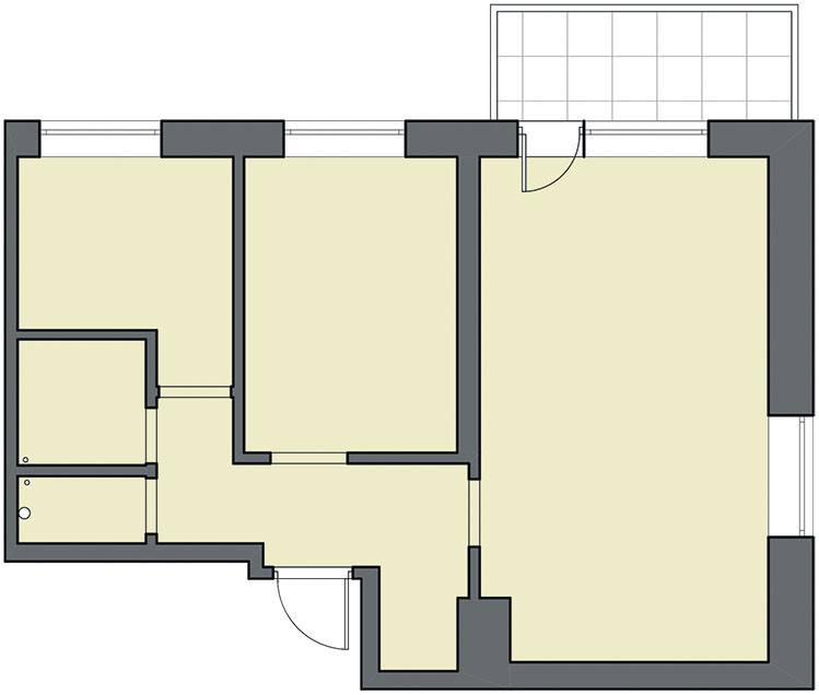
План до ремонта

Технические данные
до ремонта:
- общая площадь — 40,8 м2
- высота потолков — 2,6 м
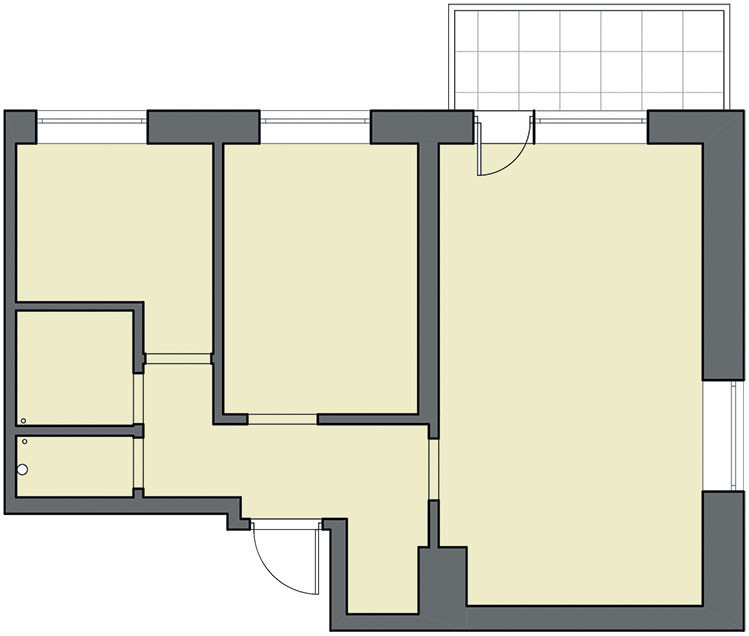
после ремонта:
- общая площадь — 41,3 м2
- высота потолков — 2,5–2,6 м
Весь объект
- Двери: входная «Ягуар», пенал для двери Scrigno, скрытая дверь под покраску Academy Secret
- Стены: гипсовые блоки, краска Little Greene, Benjamin Moore
- Плинтусы: Orac Decor
- Подоконники: акриловый ка мень, слэб карагача и дубовый щит
- Электроустановочные изделия: ABB Nissen
- Оборудование: радиаторы Arbonia, кондиционер Daikin
- Шкафы встроенные: «Мебельный Дом Чехов», Альгот (ИКЕА)
План после ремонта

Кухня — 5,2 м2
- Пол: керамическая плитка Kite (Equipe)
- Потолок: ГКЛ
- Стены: матовая краска для стен Little Greene
- Мебель: «Стильные Кухни», стеллаж (на заказ в столярной мастерской)
- Светильники: Lightstar
- Аксессуары: текстиль — студия «ДаротеК»
- Бытовая техника: Neff, SMEG
Гостиная-столовая — 17,7 м2
- Пол: инженерная доска индивидуального производства
- Стены: интерьерная краска Little Greene, фреска Affresco
- Мебель: диван Moon, остальная мебель — под заказ в столярной мастерской
- Светильники: бра ST-Luce, встроенные Lightstar
- Аксессуары: зеркала, подвесные полки Umbra, декор H&M Home, мебельная фурнитура Zara Home
Спальня — 9,2 м2
- Пол: инженерная доска индивидуального производства
- Стены: интерьерная краска Benjamin Moore
- Мебель: кровать и диван — «Орматек», шкаф «Мебельный Дом Чехов». Остальное — индивидуальный заказ в столярной мастерской
- Светильники: накладные Lightstar
- Аксессуары: шторы «ДаротеК», покрывало на кровать Zara Home
Прихожая — 3,8 м2
- Пол: керамическая плитка Kite (Equipe)
- Стены: интерьерная краска Little Greene
- Мебель: система хранения Альгот (ИКЕА)
- Светильники: накладные Lightstar
Санузел — 5,4 м2
- Пол: керамическая плитка Italon/Maison
- Стены: керамическая плитка Chevron wall и Scale (Equipe), «Городские цветы» (Kerama Marazzi)
- Сантехника: раковина и унитаз Villeroy & Boch, душевой уголок Cezares, смесители и душевая система Grohe
Экспресс-подбор
Объединить материалы, мебель и декор, взятые из стилей industrial и mid-century modern, помогут два основных цвета — крем-брюле и аквамарин.


Дизайнер Наталия Андрианова. Фото: Евгений Гнесин, Farrow & Ball (2), Umbra, Komar, La Redoute Intérieurs, KARE Design, The IDEA, Karelia (2)
